| MLS # | 932545 |
| Chi tiết bất động sản | 2 gia đình, 3 phòng ngủ, 2 phòng tắm, điều hòa không khí, ngoại thất: 0.05 mẫu đất (DOM): 61 days |
| Năm xây dựng | 1925 |
| Thuế (hàng năm) | $4,792 |
| Loại nhiên liệu | Khí ga |
| Điều hòa không khí | Điều hòa treo tường |
| Xe buýt | 4 phút: B57 |
| 7 phút: B103 | |
| 9 phút: B61 | |
| 10 phút: B65 | |
| Tàu điện ngầm | 4 phút: F, G |
| 9 phút: R | |
| Tàu hỏa | 0.9 dặm: "Atlantic Terminal" |
| 2.3 dặm: "Nostrand Avenue" | |
![]() |
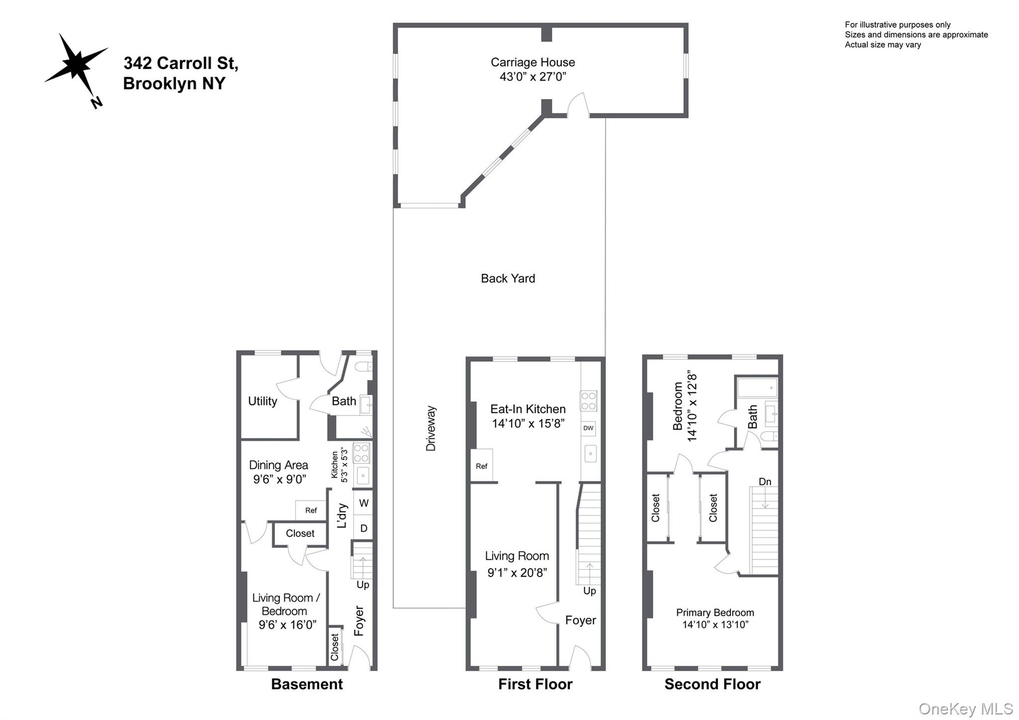
Ngôi nhà hợp pháp hai gia đình này mang đến cơ hội hiếm có để sở hữu một tài sản với lối đi riêng và một ngôi nhà xe rộng rãi ở phía sau. Nằm trên một con phố yên tĩnh, cây xanh, nó kết hợp sự thoải mái, linh hoạt và tính cách trong một trong những khu phố được ưa chuộng nhất của Brooklyn.
Căn nhà chính được bố trí thành hai đơn vị: một căn hộ một phòng ngủ ở tầng dưới và một căn hộ duplex hai phòng ngủ ở trên. Cả hai đều có bếp và phòng tắm mới hơn, cùng với sàn gỗ nguyên bản và những chi tiết cổ điển quyến rũ mang lại sự ấm cúng cho mỗi không gian.
Đằng sau tài sản là một ngôi nhà xe rộng 2.400 bộ vuông, mang đến một không gian trống với tiềm năng vô hạn để được chuyển đổi thành một điều gì đó đáng chú ý. Cho dù bạn tưởng tượng không gian sống bổ sung, một nơi nghỉ ngơi sáng tạo, hay đơn giản là không gian để phát triển, những khả năng là rất rộng mở.
Với sự kết hợp của nội thất được cập nhật, nét quyến rũ nguyên bản, chỗ đỗ xe riêng tư và lợi thế hiếm có của một ngôi nhà xe đầy đủ, tài sản này nổi bật như một cơ hội độc đáo tại Brooklyn.
This legal two-family home offers a rare opportunity to own a property with a private driveway and a spacious carriage house in the rear. Located on a quiet, tree-lined block, it combines comfort, flexibility, and character in one of Brooklyn’s most desirable neighborhoods.
The main residence is arranged as two units: a one-bedroom apartment on the lower level and a two-bedroom duplex above. Both offer newer kitchens and bathrooms, along with original hardwood floors and charming period details that bring warmth to each space.
At the back of the property sits a 2,400 sq. ft. carriage house, offering a blank canvas with endless potential to be transformed into something remarkable. Whether you envision additional living space, a creative retreat, or simply room to grow, the possibilities are wide open.
With its mix of updated interiors, original charm, private parking, and the rare bonus of a full carriage house, this property stands out as a unique opportunity in Brooklyn. © 2025 OneKey™ MLS, LLC







