| ID # | 969333 |
| Chi tiết bất động sản | 4 phòng ngủ, 1 phòng tắm, điều hòa không khí, ngoại thất: 0.23 mẫu đất, nội thất: 2546 ft2, 237m2 (DOM): 1 days |
| Năm xây dựng | 1910 |
| Thuế (hàng năm) | $16,895 |
| Loại sưởi | Khí nóng |
| Điều hòa không khí | Điều hòa trung tâm |
| Tầng hầm | Tầng hầm đầy đủ |
![]() |
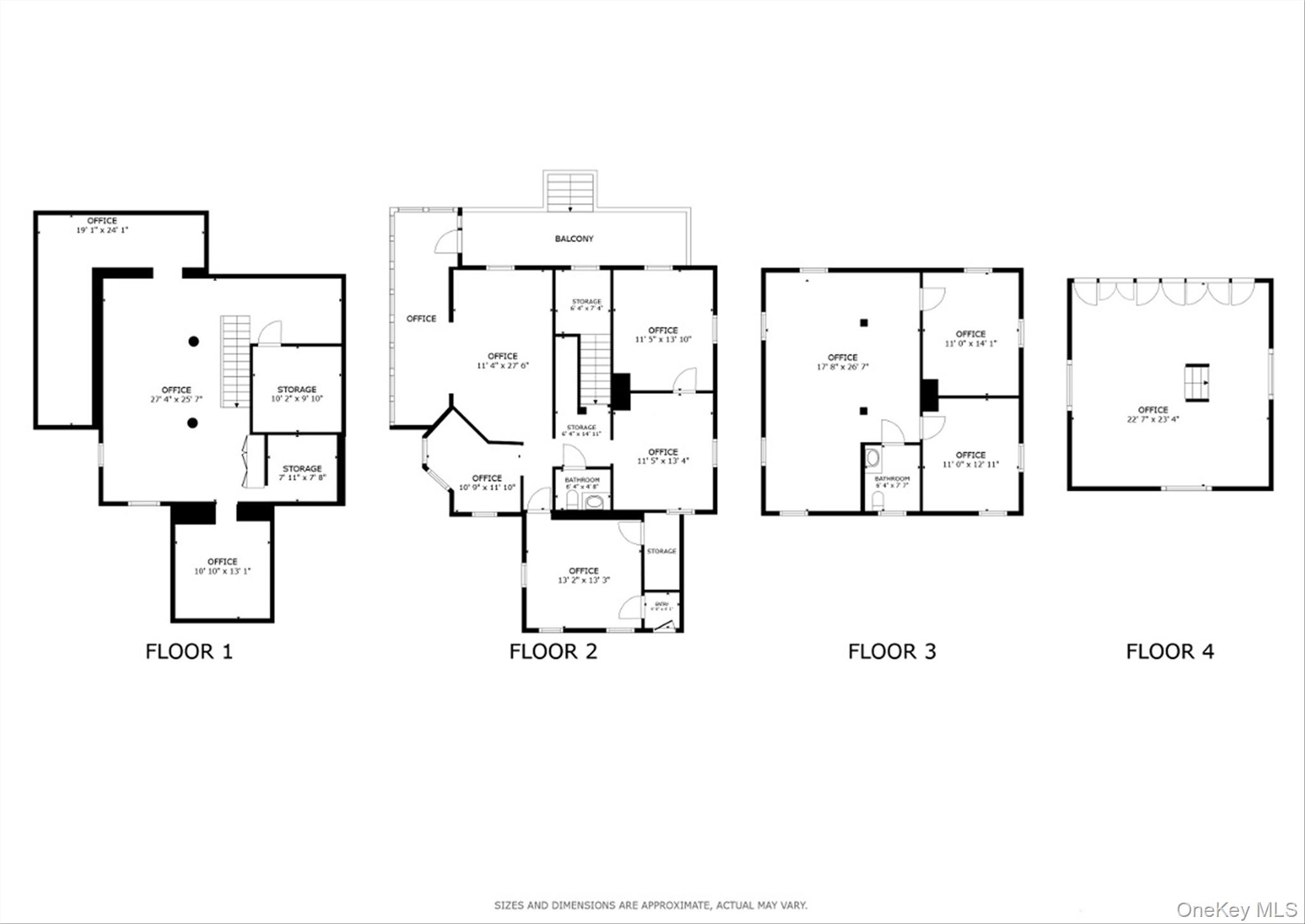
Cơ hội đang chờ đón tại 20 Madison Ave, một ngôi nhà đơn lập kiểu Colonial hợp pháp với hơn 3,300 bộ vuông không gian nội thất trên lô đất 0,23 mẫu ở Mount Pleasant. Hiện tại được cấu hình như không gian văn phòng, với 4 phòng ngủ và 1 phòng tắm hợp pháp, bất động sản này mang đến cơ hội độc đáo để phục hồi và tùy chỉnh một bố cục nhà ở phù hợp với tầm nhìn của bạn. Hiện tại có các khách thuê thương mại theo tháng ở tầng 1 và tầng hầm, và một người khác trên tầng 2-3.
Bố cục hiện tại trải dài qua nhiều tầng và bao gồm nhiều phòng đã hoàn thiện, cung cấp sự linh hoạt cho việc tái cấu trúc thành một ngôi nhà đơn lập truyền thống với nhiều phòng ngủ, khu vực sinh hoạt và tùy chọn không gian làm việc. Một tầng hầm hoàn thiện với lối đi ra ngoài cung cấp thêm không gian sử dụng, trong khi lô đất rộng lớn cung cấp chỗ cho thư giãn ngoài trời, đậu xe hoặc cải tiến trong tương lai.
Bất động sản này có điều hòa trung tâm, tiện ích công cộng và một lối vào với bãi đậu xe cho 8 chiếc xe. Vị trí thuận tiện gần đường cao tốc Taconic State Pway, cách 2 khối nhà từ điểm dừng Metro North Valhalla trên tuyến Harlem, và các tiện ích gần đó, hỗ trợ cho nhiều nhu cầu sinh sống khác nhau.
Quan trọng: Bất động sản đang được bán như hiện trạng. Hiện không có Giấy chứng nhận Sử dụng, và Thị trấn báo cáo có ba giấy phép mở/hết hạn. Người mua chịu trách nhiệm cho tất cả các điều tra kỹ lưỡng, giấy phép và bất kỳ phê duyệt nào cần thiết. Đây là cơ hội hiếm có để mang lại sức sống mới cho một bất động sản với các nền tảng vững chắc, không gian rộng rãi và tiềm năng lâu dài.
Opportunity awaits at 20 Madison Ave, a legal single-family Colonial offering over 3,300 square feet of interior space on a 0.23-acre lot in Mount Pleasant. Currently configured as office space, legal 4 bed 1 bath, this property presents a unique chance to restore and customize a residential layout to suit your vision. Currently has month to month commercial tenants on 1st & basement and another on 2nd-3rd floors.
The existing layout spans multiple levels and includes numerous finished rooms, providing flexibility for reconfiguration into a traditional single-family residence with multiple bedrooms, living areas, and workspace options. A full finished basement with walk-out access adds additional usable space, while the expansive lot offers room for outdoor enjoyment, parking, or future enhancements.
The property features central air, public utilities, and a driveway with an 8-car parking lot. Conveniently located near the Taconic State Pway, 2 blocks from Metro North Valhalla stop on the Harlem Line, and local amenities, the location supports a variety of residential living needs.
Important: Property is being sold as-is. There is currently no Certificate of Occupancy, and the Town reports three open/expired permits. Buyer is responsible for all due diligence, permits, and any required approvals. A rare opportunity to bring new life to a property with strong fundamentals, generous space, and long-term potential.
This information is not verified for authenticity or accuracy and is not guaranteed and may not reflect all real estate activity in the market. Listing courtesy of Hollingsworth Real Estate Grp. © 2026







