| ID # | 969132 |
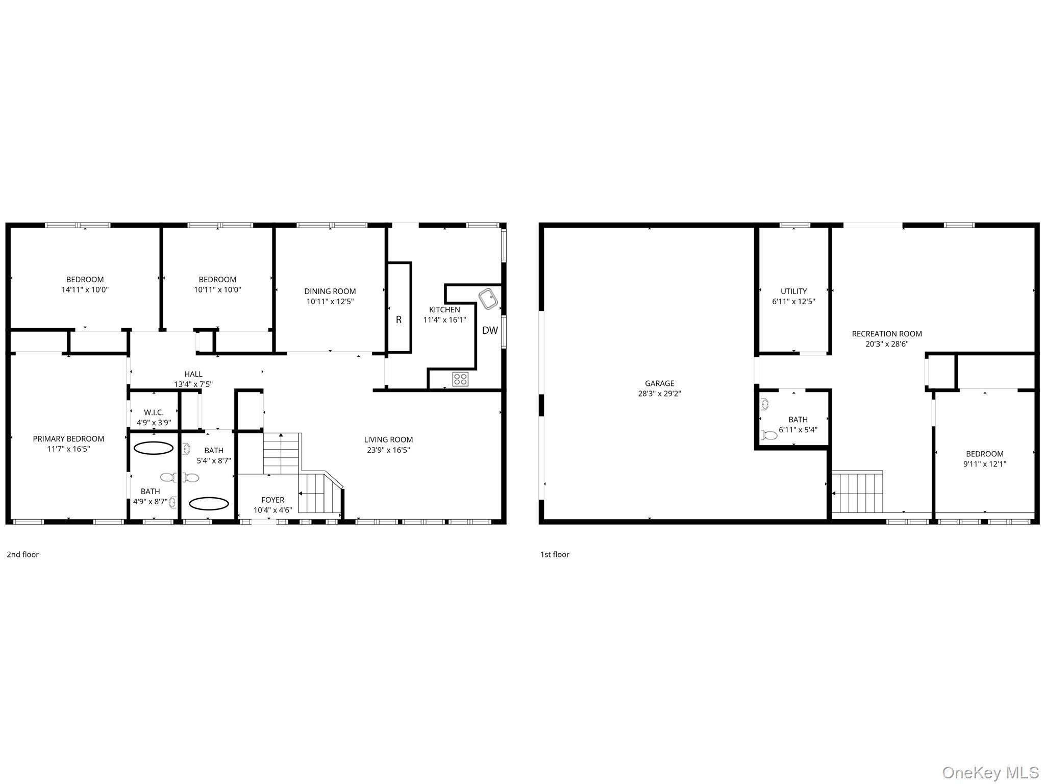
| Chi tiết bất động sản | 4 phòng ngủ, 2 phòng tắm, 1 phòng vệ sinh nhỏ, máy rửa chén, máy giặt, máy sấy, gara, điều hòa không khí, ngoại thất: 0.35 mẫu đất, nội thất: 2246 ft2, 209m2 (DOM): 16 days |
| Năm xây dựng | 1968 |
| Thuế (hàng năm) | $16,016 |
| Loại nhiên liệu | Khí ga |
| Loại sưởi | Nước nóng |
| Điều hòa không khí | Điều hòa trung tâm |
| Tầng hầm | Không có |
![]() |
CẢNH ĐẸP NÚI TUYỆT VỜI TẠI MỘT KHU VỰC CAO CẤP CỦA ORANGETOWN – Ngôi nhà hiện đại 4 phòng ngủ, 2.5 phòng tắm này sẵn sàng để dọn vào, mang đến sự kết hợp hoàn hảo giữa vẻ đẹp cảnh quan, sự thoải mái và sự tiện lợi trong khu học chính Orangetown rất được ưa chuộng. Bước vào bên trong, bạn sẽ thấy sàn gỗ bóng loáng, tông màu sơn nội thất trung tính, và một phòng khách rộng rãi, tràn ngập ánh sáng tự nhiên từ số lượng lớn cửa sổ, tạo nên một bầu không khí ấm áp và mời gọi. Nhà bếp sáng sủa với không gian ăn uống có thiết bị thép không gỉ và mở trực tiếp ra một sân lớn—hoàn hảo cho cà phê sáng, ăn uống ngoài trời hoặc tiệc tùng trong khi thưởng thức cảnh núi tuyệt đẹp. Ngay bên cạnh bếp là một phòng ăn rộng rãi giúp việc tổ chức các ngày lễ và buổi họp mặt trở nên dễ dàng. Tầng chính cũng có một phòng ngủ chính rộng rãi với phòng tắm riêng tư và tủ quần áo đi bộ, cùng với hai phòng ngủ bổ sung có kích thước hợp lý và một phòng tắm chính đầy đủ. Tầng dưới cung cấp sự linh hoạt tuyệt vời với một phòng gia đình lớn có cửa trượt dẫn ra sân sau có hàng rào, một phòng ngủ bổ sung và một phòng tắm nửa—lý tưởng cho khách, văn phòng tại nhà, hoặc không gian sống mở rộng. Tài sản kéo dài ra ngoài khu vực hàng rào, cung cấp thêm không gian ngoài trời để tận hưởng. Các tính năng bổ sung bao gồm một lò hơi mới (2024), bồn nước nóng (2017), thiết bị bằng thép không gỉ (2017), đèn chiếu sáng âm tường, mặt ngoài trước được sơn mới, và hệ thống tưới tự động. Phòng giặt và garage gắn liền cho hai xe ô tô có kích thước lớn mang lại sự tiện lợi hàng ngày. Với cảnh đẹp tuyệt vời, không gian sống rộng rãi, và những cập nhật quan trọng đã được hoàn thành, ngôi nhà này thực sự cung cấp vị trí, lối sống, và sự tiện lợi sẵn sàng để dọn vào—đừng bỏ lỡ cơ hội này! Nằm ở vị trí lý tưởng với khả năng tiếp cận thuận tiện đến mua sắm và ăn uống, cùng với các kết nối liền mạch đến NYC, New Jersey, Westchester, và quận Orange.
STUNNING MOUNTAIN VIEWS IN A PREMIER ORANGETOWN NEIGHBORHOOD – This move-in ready contemporary 4-bedroom, 2.5-bath home offers the perfect blend of scenic beauty, comfort, and convenience in the highly desirable Orangetown School District. Step inside to find gleaming hardwood floors, neutral interior paint tones, and a spacious, sun-drenched living room filled with natural light from an abundance of windows, creating a warm and inviting atmosphere throughout. The bright eat-in kitchen features stainless steel appliances and opens directly to a large deck—perfect for morning coffee, outdoor dining, or entertaining while enjoying breathtaking mountain views. Just off the kitchen is a generous dining room that makes hosting holidays and gatherings effortless. The main level also features a spacious primary bedroom with a private en-suite bath and walk-in closet, along with two additional well-sized bedrooms and a full main bath. The lower level offers incredible flexibility with a large family room featuring sliders to the fenced backyard, an additional bedroom, and a half bath—ideal for guests, a home office, or extended living space. The property extends beyond the fenced area, offering even more outdoor space to enjoy. Additional features include a new furnace (2024), hot water heater (2017), stainless steel appliances (2017), recessed lighting, a freshly painted front exterior, and a sprinkler system. A laundry room and oversized two-car attached garage add everyday convenience. With stunning views, generous living space, and important updates already completed, this home truly offers location, lifestyle, and move-in ready convenience—don’t miss this opportunity! Ideally situated with convenient access to shopping and dining, along with seamless connections to NYC, New Jersey, Westchester, and Orange County.
This information is not verified for authenticity or accuracy and is not guaranteed and may not reflect all real estate activity in the market. Listing courtesy of Keller Williams Hudson Valley © 2026







