| ID # | 11669508 |
| Chi tiết bất động sản | 2 phòng ngủ, 2 phòng tắm (DOM): 19 days |
| English Webpage | |
| Tàu điện ngầm | 1 phút: 6 |
| 2 phút: R, W | |
| 7 phút: L, 4, 5 | |
| 8 phút: B, D, F, M | |
| 9 phút: N, Q | |
| 10 phút: A, C, E | |
![]() |
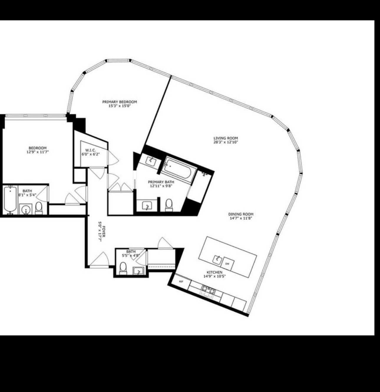
445 Lafayette Street #6B $2,990,000 | 2 Bed | 2 Bath High above Astor Place, Residence 6B is a sun-filled, fully renovated two-bedroom, two-bathroom home offering open city views and a seamless blend of downtown vibrancy and modern luxury. Oversized windows flood the space with natural light, highlighting an expansive living and dining area ideal for both entertaining and everyday living. The thoughtfully designed split-bedroom layout provides exceptional privacy, while custom storage throughout maximizes both function and flow. The chef's kitchen has been completely upgraded with premium stainless steel appliances, sleek custom cabinetry, and elegant stone countertops. Both bathrooms have been meticulously renovated with high-end finishes, creating a spa-like experience. Every detail has been carefully considered, making this a true turnkey residence. 445 Lafayette Street is a full-service cooperative offering a 24-hour doorman, live-in superintendent, landscaped roof deck with sweeping city views, laundry facilities, and on-site parking. The building is well-maintained and highly regarded for its service and convenience. Perfectly positioned where NoHo, Greenwich Village, and the East Village meet, you are surrounded by some of Manhattan's best dining, shopping, and culture-just moments from Washington Square Park. Multiple subway lines (6, B, D, F, M, R, W) are directly outside your door for effortless access across the city. Turnkey, sun-filled, and ideally located-this is downtown living at its best.







