Chung cư (condo)
Địa chỉ: ‎197 PULASKI Street #PENTHOUSE
Mã bưu điện: 11206
2 phòng ngủ, 2 phòng tắm, 963ft2
分享到
$1,150,000
ID # RLS20072776
Vietnamese
Are you the listing agent? Sign up to add your name and cell #
Douglas Elliman Real Estate Office: ‍212-891-7000

$1,150,000 - 197 PULASKI Street #PENTHOUSE, Bedford-Stuyvesant, NY 11206|ID # RLS20072776

Property Description « Vietnamese »

Pulaski Gardens là một căn hộ boutique mới xây dựng gồm bảy đơn vị, nằm trên một khu phố yên tĩnh, có hàng cây rợp bóng ở trung tâm Bedford-Stuyvesant. Được thiết kế cẩn thận để cân bằng giữa sự riêng tư và cuộc sống hiện đại nâng cao, tòa nhà mang đến trải nghiệm sinh sống tinh tế với hệ thống khóa thông minh không cần chìa, hệ thống lễ tân ảo, và hệ thống sưởi ấm và làm mát nhiều khu vực khắp nơi.

Mỗi căn hộ có nội thất hiện đại với trần cao, cửa sổ kích thước lớn, ánh sáng âm tường, và sàn gỗ sồi trắng bản rộng. Bếp đạt tiêu chuẩn đầu bếp được trang bị đẹp mắt với bàn đá quartz tinh tế, các thiết bị cao cấp Bertazzoni và Blomberg, lò vi sóng Bertazzoni được tích hợp, và tủ bếp làm bằng gỗ hoàn thiện melamine bền bỉ, kết hợp giữa thiết kế đơn giản và chức năng hàng ngày.

Nhà tắm được lấy cảm hứng từ spa được hoàn thiện bằng đá thanh lịch với gạch sàn sứ, bồn cầu gắn tường để tăng hiệu suất, và các thiết bị hiện đại tạo ra không gian yên bình và tinh tế. Các phòng ngủ rộng rãi mang lại sự thoải mái và ánh sáng tự nhiên, trong khi một số căn hộ lựa chọn có không gian ngoài trời riêng và bố cục duplex nâng cao tính linh hoạt và khả năng sống.

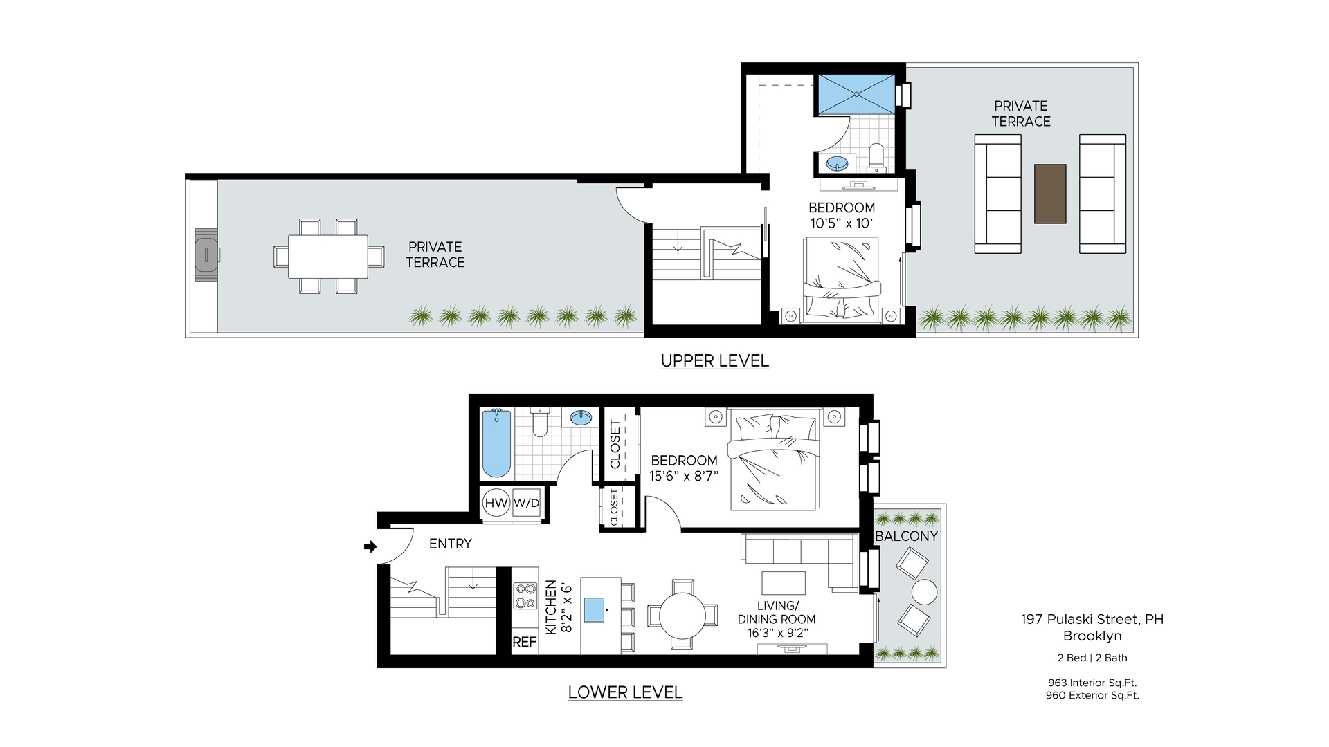
Căn hộ Penthouse là một căn hộ duplex hai phòng ngủ, hai phòng tắm tuyệt đẹp với nhiều không gian ngoài trời riêng biệt có hướng bắc và nam, bao gồm hai sân thượng rộng lớn và một ban công riêng ngoài khu vực sinh hoạt dành cho cuộc sống trong nhà và ngoài trời nâng cao.

Nằm cách những tuyến tàu G, J, M, và Z chỉ vài phút, Pulaski Gardens cung cấp truy cập liền mạch đến Williamsburg, Downtown Brooklyn, và Manhattan. Cư dân thưởng thức vẻ đẹp của những con phố brownstone lịch sử ở Bedford-Stuyvesant cùng với một bộ sưu tập ngày càng phong phú của những quán cà phê, nhà hàng, cửa hàng thời trang và tiện ích trong khu vực.

ID #‎ RLS20072776
Chi tiết bất động sản2 phòng ngủ, 2 phòng tắm, nội thất: 963 ft2, 89m2
(DOM): 6 days
Năm xây dựng2025
Phí bảo trì$721
Thuế (hàng năm)$8,748
Xe buýt1 phút: B38, B43
4 phút: B15, B54
9 phút: B44, B46, B47, B52
10 phút: B44+, B57
Tàu điện ngầm6 phút: G
10 phút: J, M, Z
Tàu hỏa1.1 dặm: "Nostrand Avenue"
1.8 dặm: "Atlantic Terminal"
Are you the listing agent? Sign up to add your name/photo/cell to your flyers. helpdesk@Samaki.com
房屋概況 Property Description « Vietnamese »« ENGLISH »

Pulaski Gardens là một căn hộ boutique mới xây dựng gồm bảy đơn vị, nằm trên một khu phố yên tĩnh, có hàng cây rợp bóng ở trung tâm Bedford-Stuyvesant. Được thiết kế cẩn thận để cân bằng giữa sự riêng tư và cuộc sống hiện đại nâng cao, tòa nhà mang đến trải nghiệm sinh sống tinh tế với hệ thống khóa thông minh không cần chìa, hệ thống lễ tân ảo, và hệ thống sưởi ấm và làm mát nhiều khu vực khắp nơi.

Mỗi căn hộ có nội thất hiện đại với trần cao, cửa sổ kích thước lớn, ánh sáng âm tường, và sàn gỗ sồi trắng bản rộng. Bếp đạt tiêu chuẩn đầu bếp được trang bị đẹp mắt với bàn đá quartz tinh tế, các thiết bị cao cấp Bertazzoni và Blomberg, lò vi sóng Bertazzoni được tích hợp, và tủ bếp làm bằng gỗ hoàn thiện melamine bền bỉ, kết hợp giữa thiết kế đơn giản và chức năng hàng ngày.

Nhà tắm được lấy cảm hứng từ spa được hoàn thiện bằng đá thanh lịch với gạch sàn sứ, bồn cầu gắn tường để tăng hiệu suất, và các thiết bị hiện đại tạo ra không gian yên bình và tinh tế. Các phòng ngủ rộng rãi mang lại sự thoải mái và ánh sáng tự nhiên, trong khi một số căn hộ lựa chọn có không gian ngoài trời riêng và bố cục duplex nâng cao tính linh hoạt và khả năng sống.

Căn hộ Penthouse là một căn hộ duplex hai phòng ngủ, hai phòng tắm tuyệt đẹp với nhiều không gian ngoài trời riêng biệt có hướng bắc và nam, bao gồm hai sân thượng rộng lớn và một ban công riêng ngoài khu vực sinh hoạt dành cho cuộc sống trong nhà và ngoài trời nâng cao.

Nằm cách những tuyến tàu G, J, M, và Z chỉ vài phút, Pulaski Gardens cung cấp truy cập liền mạch đến Williamsburg, Downtown Brooklyn, và Manhattan. Cư dân thưởng thức vẻ đẹp của những con phố brownstone lịch sử ở Bedford-Stuyvesant cùng với một bộ sưu tập ngày càng phong phú của những quán cà phê, nhà hàng, cửa hàng thời trang và tiện ích trong khu vực.

Read the English version or choose another language

This information is not verified for authenticity or accuracy and is not guaranteed and may not reflect all real estate activity in the market. © 2026 The Real Estate Board of New York, Inc., All rights reserved.

Courtesy of Douglas Elliman Real Estate

公司: ‍212-891-7000




分享 Share
$1,150,000
Chung cư (condo)
ID # RLS20072776
‎197 PULASKI Street
Brooklyn, NY 11206
2 phòng ngủ, 2 phòng tắm, 963ft2


Listing Agent(s):‎
Are you the listing agent?
Sign up to add your name and cell #‎
Office: ‍212-891-7000
请说您在SAMAKI.COM看此广告
请也给我ID # RLS20072776