| ID # | RLS20060920 |
| Chi tiết bất động sản | 5 phòng ngủ, 5 phòng tắm, 1 phòng vệ sinh nhỏ, máy giặt, máy sấy, gara, nội thất: 4500 ft2, 418m2 (DOM): 52 days |
| Năm xây dựng | 1908 |
| Tàu điện ngầm | 5 phút: 1, 2, 3 |
![]() |
Cho thuê ngắn hạn có đầy đủ nội thất và chỗ đậu xe riêng!
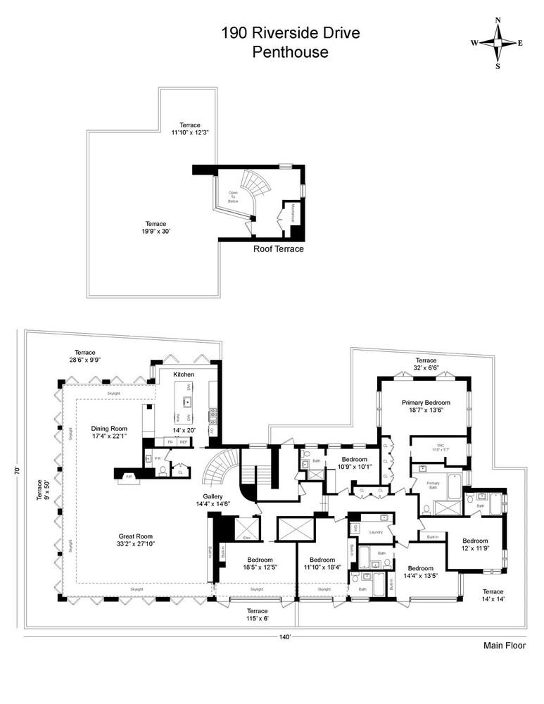
Nằm trên hơn 4,500 bộ vuông không gian nội thất và được bao quanh bởi kính, căn penthouse chiếm toàn bộ tầng này là một nơi trú ẩn ngập tràn ánh sáng với tầm nhìn 360 độ, thiết kế hiện đại tinh tế và chỗ đậu xe riêng. Được hình thành bởi kiến trúc sư danh tiếng Spivak Architects, ngôi nhà cung cấp 4/5 phòng ngủ, 6 phòng tắm và một không gian sống ngoài trời đáng kinh ngạc rộng 3,000 bộ vuông trải dài qua hai tầng khác biệt. Nằm trên nền kiến trúc Beaux-Arts nổi tiếng của 190 Riverside Drive, nơi ở này có những bức tường kính có thể thu vào, xóa nhòa ranh giới giữa không gian trong nhà và ngoài trời, mở ra một sân thượng rộng lớn với tầm nhìn điện ảnh ra sông Hudson, cầu George Washington và đường chân trời thành phố.
Một thang máy khóa chìa khóa đưa bạn trực tiếp vào một phòng lớn rộng lớn - một không gian sáng sủa giống như nhà kính, được neo bởi một lò sưởi gas bằng đá anthracite và kính. Những bức tường kính cao mười một feet vươn lên và nghiêng vào các ô cửa sổ trời, bao quanh chu vi, đưa vào không gian sống và phòng ăn một trò chơi ánh sáng luôn thay đổi. Văn phòng hướng về phía nam liền kề, được cách ly bằng cửa trượt, cung cấp một không gian thoải mái mở rộng cho các khu vực giải trí. Một phòng tắm tinh tế nằm yên tĩnh bên ngoài hành lang vào.
Sân thượng hướng bắc và tây của ngôi nhà chảy liền mạch từ bếp của đầu bếp, nơi có một đảo rộng rãi, mặt bàn bằng đá quartzite, và quầy ăn sáng bổ sung cho tủ lạnh Sub-Zero, tủ rượu và các thiết bị Thermador. Tủ đựng đồ phong phú, lưu trữ thực phẩm, và không gian làm việc rộng rãi tạo ra một môi trường lý tưởng cho cả việc nấu nướng và tổ chức tiệc tùng. Một cầu thang sắt rèn ấn tượng nằm dưới một atrium kính dẫn lên tầng ngoài trời phía trên: một sân thượng riêng rộng hơn 730 bộ vuông được thiết kế bởi kiến trúc sư cảnh quan nổi tiếng Michael Van Valkenburgh. Khu vườn cao cấp, cây cối xanh tươi và tuyệt đối riêng tư này, có một số tầm nhìn đẹp nhất dọc theo Riverside Drive.
Một cánh phòng ngủ yên tĩnh trải dài phía đông của ngôi nhà, cung cấp bốn phòng ngủ, năm phòng tắm đầy đủ, một phòng gym được trang bị đầy đủ và một phòng giặt lớn tách biệt khỏi không gian sống chính.
Phòng suite chính là một nơi trú ẩn riêng biệt, với một sân thượng riêng khung cảnh tầm nhìn ra sông tuyệt đẹp. Phòng tắm lấy cảm hứng từ spa của nó có một bồn tắm ngâm 6 feet bằng đá quartzite trắng Macauba, một vòi sen hơi nước riêng được lát bằng đá Dolamitchi, một bồn đôi tùy chỉnh, các trang thiết bị cao cấp từ Dombracht, Duravit, và Waterworks, và sàn có hệ thống sưởi dưới. Không gian lưu trữ đặc biệt - bao gồm một tủ quần áo walk-in rộng rãi - hoàn thiện cho suite.
Ba phòng ngủ bổ sung đều được thiết kế rộng rãi, sáng sủa và được trang bị tốt với phòng tắm riêng và tủ quần áo đầy đủ. Hai phòng mở trực tiếp ra sân thượng. Phòng gym cũng có một phòng tắm riêng, có thể dễ dàng chuyển đổi thành một phòng ngủ khác nếu cần thiết.
Những tính năng bổ sung bao gồm điều khiển ánh sáng Lutron, hệ thống khí hậu đa vùng Ecobee, bồn cầu tự động Toto và một máy nước nóng riêng. Một chỗ đậu xe tự phục vụ cũng như dịch vụ dọn dẹp hai tuần một lần được bao gồm.
Được thiết kế bởi kiến trúc sư nổi tiếng Ralph Townsend, 190 Riverside Drive là một trong những căn hộ trước chiến tranh được yêu thích nhất ở Upper West Side. Tòa nhà boutique, thân thiện với vật nuôi, cung cấp dịch vụ lễ tân 24/7, ga ra, kho chứa, phòng để xe đạp, và quản lý sống trong. Nằm ở vị trí hoàn hảo tại góc Riverside Drive và phố West 91, đối diện một trong những đoạn đẹp nhất của công viên Riverside và dễ dàng tiếp cận các cửa hàng, nhà hàng và tiện ích tốt nhất trong khu vực.
Phí xử lý: $200
Phí kiểm tra tín dụng và lý lịch: $125
Tiền đặt cọc khi vào ở (có thể hoàn lại): $1,000
Phí đăng ký trực tuyến: $75
1 tháng tiền thuê
1 tháng tiền bảo đảm
Short Term Furnished Rental With Private Parking!
Presiding over more than 4,500 sq. ft. of interior space and wrapped in glass, this full-floor penthouse is a light-filled sanctuary with 360 vistas, refined contemporary design, and its own private parking space. Envisioned by the acclaimed Spivak Architects, the home offers 4/5 bedrooms, 6 bathrooms, and an astonishing 3,000 sq. ft. of outdoor living across two dramatic levels. Resting atop the landmark Beaux-Arts architecture of 190 Riverside Drive, the residence features retractable glass walls that dissolve the boundary between indoors and out, opening to an expansive terrace with cinematic views of the Hudson River, the George Washington Bridge, and the city skyline.
A key-locked elevator delivers you directly into an immense great room-an airy, greenhouse-like space anchored by a sculptural anthracite stone and glass gas fireplace. Eleven-foot glass walls rise and angle into skylights that sweep around the perimeter, infusing the living and dining areas with an ever-shifting play of sunlight. The adjacent south-facing office, insulated by pocket doors, provides a comfortable extension of the entertaining spaces. A refined powder room sits quietly off the entry gallery.
The home's north- and west-facing terrace flows seamlessly from the chef's kitchen, where a generous island, quartzite stone counters, and a breakfast bar complement Sub-Zero refrigeration, a wine cooler, and Thermador appliances. Abundant cabinetry, pantry storage, and generous workspace create an ideal environment for both cooking and hosting.
A dramatic wrought-iron staircase beneath a glass atrium leads to the upper outdoor level: a private 730+ sq. ft. rooftop terrace designed by celebrated landscape architect Michael Van Valkenburgh. Lushly planted and extraordinarily private, this elevated garden, offers some of the most commanding views along Riverside Drive.
A tranquil bedroom wing spans the eastern side of the home, offering four bedrooms, five full baths, a fully equipped gym, and a large laundry room removed from the main living spaces.
The primary suite is a haven unto itself, with a private terrace framing sweeping river views. Its spa-inspired bath features a 6-foot soaking tub set in white Macauba quartzite, a separate steam shower clad in Dolamitchi marble, a custom double vanity, premium fixtures from Dombracht, Duravit, and Waterworks, and radiant heated floors. Exceptional storage-including a spacious walk-in closet-completes the suite.
The three additional bedrooms are all generously scaled, bright, and well-appointed with ensuite baths and ample closets. Two open directly onto the terrace. The gym which also has an en-suite bath, can transition effortlessly into another bedroom if needed.
Additional features include Lutron lighting controls, multi-zone Ecobee climate systems, Toto automated Washlets, and a private hot water heater. A self-park garage space as well as biweekly cleaning services are included.
Designed by prominent architect Ralph Townsend, 190 Riverside Drive is one of the Upper West Side's most admired prewar condominiums. The boutique, pet-friendly building provides full-time doorman service, garage, storage, a bike room, and a live-in superintendent. Perfectly located at the corner of Riverside Drive and West 91st Street, it faces one of the most beautiful stretches of Riverside Park and enjoys easy access to the neighborhood's finest shops, dining, and conveniences.
Processing fee: $200Credit and Background Check Fee: $125Move-in Deposit (refundable): $1,000Online application fee: $75 1 Month's Rent1 Month's Security
This information is not verified for authenticity or accuracy and is not guaranteed and may not reflect all real estate activity in the market. ©2025 The Real Estate Board of New York, Inc., All rights reserved.






