| ID # | 11606739 |
| Chi tiết bất động sản | 6 phòng ngủ, 4 phòng tắm, ngoại thất: 0.04 mẫu đất, nội thất: 3580 ft2, 333m2 (DOM): 102 days |
| Năm xây dựng | 1901 |
| Thuế (hàng năm) | $9,748 |
| Tầng hầm | Tầng hầm đầy đủ |
| English Webpage | |
| Xe buýt | 2 phút: B67, B69 |
| 4 phút: B63 | |
| 5 phút: B41 | |
| 8 phút: B65 | |
| 9 phút: B103 | |
| Tàu điện ngầm | 5 phút: B, Q |
| 6 phút: 2, 3 | |
| 7 phút: R | |
| Tàu hỏa | 0.6 dặm: "Atlantic Terminal" |
| 1.5 dặm: "Nostrand Avenue" | |
![]() |
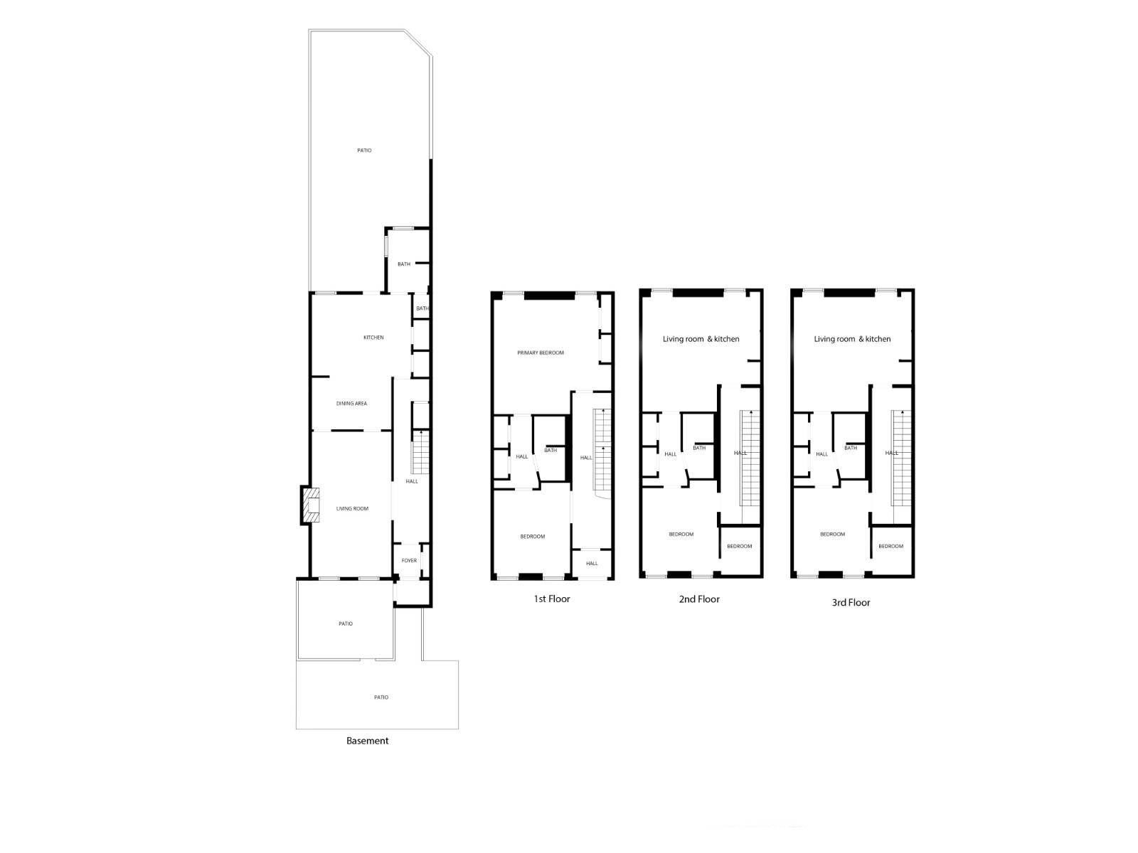
Welcome to this charming three-family brownstone, ideally situated in the highly sought-after Park Slope neighborhood of Brooklyn, NY 11215. This beautifully renovated 4-story brownstone boasts three spacious apartments, making it a perfect investment opportunity or a lovely residence for an owner-occupant. Property Features: - Units: The property consists of three well-appointed apartments: - Owner's Unit: The first and second floors are combined into one expansive unit, currently occupied by the owner. - Tenant-Occupied Units: The second unit is on the third floor, occupied by excellent tenants on a year-to-year lease. The third unit is located on the fourth floor and also has reliable tenants on a year-to-year lease. - Renovations: The entire property has been thoughtfully renovated inside and out, ensuring modern amenities while maintaining the classic charm of a brownstone. - Location: Nestled in the heart of Brooklyn, this home offers unparalleled access to local attractions: - Just a short distance to the Barclays Center. - Surrounded by a variety of shopping and dining options. - Convenient access to public transportation: - minutes to the following stations -R train at Union St station. - B & Q trains at 7th Avenue station. - 2 & 3 trains at Grand Army Plaza station. - Atlantic Ave-Barclays Center station for additional B & Q train access. Viewing Information: Just so you know, the property is currently occupied, and viewings can only be scheduled by appointment. The home is being sold as-is, with no warranties or representations. This is a rare opportunity to invest in a prime location in Park Slope, Brooklyn. Don't miss your chance to own a piece of this vibrant neighborhood!







