| ID # | RLS20059681 |
| Chi tiết bất động sản | 8 phòng ngủ, 4 phòng tắm, máy giặt, máy sấy, nội thất: 3950 ft2, 367m2 (DOM): 58 days |
| Năm xây dựng | 2008 |
| Thuế (hàng năm) | $6,816 |
| Xe buýt | 1 phút: B13, B84, Q08 |
| 5 phút: B83 | |
| 7 phút: B14, B20 | |
| 9 phút: B6, BM5 | |
| 10 phút: B15 | |
| Tàu hỏa | 2.1 dặm: "East New York" |
| 3.9 dặm: "Kew Gardens" | |
![]() |
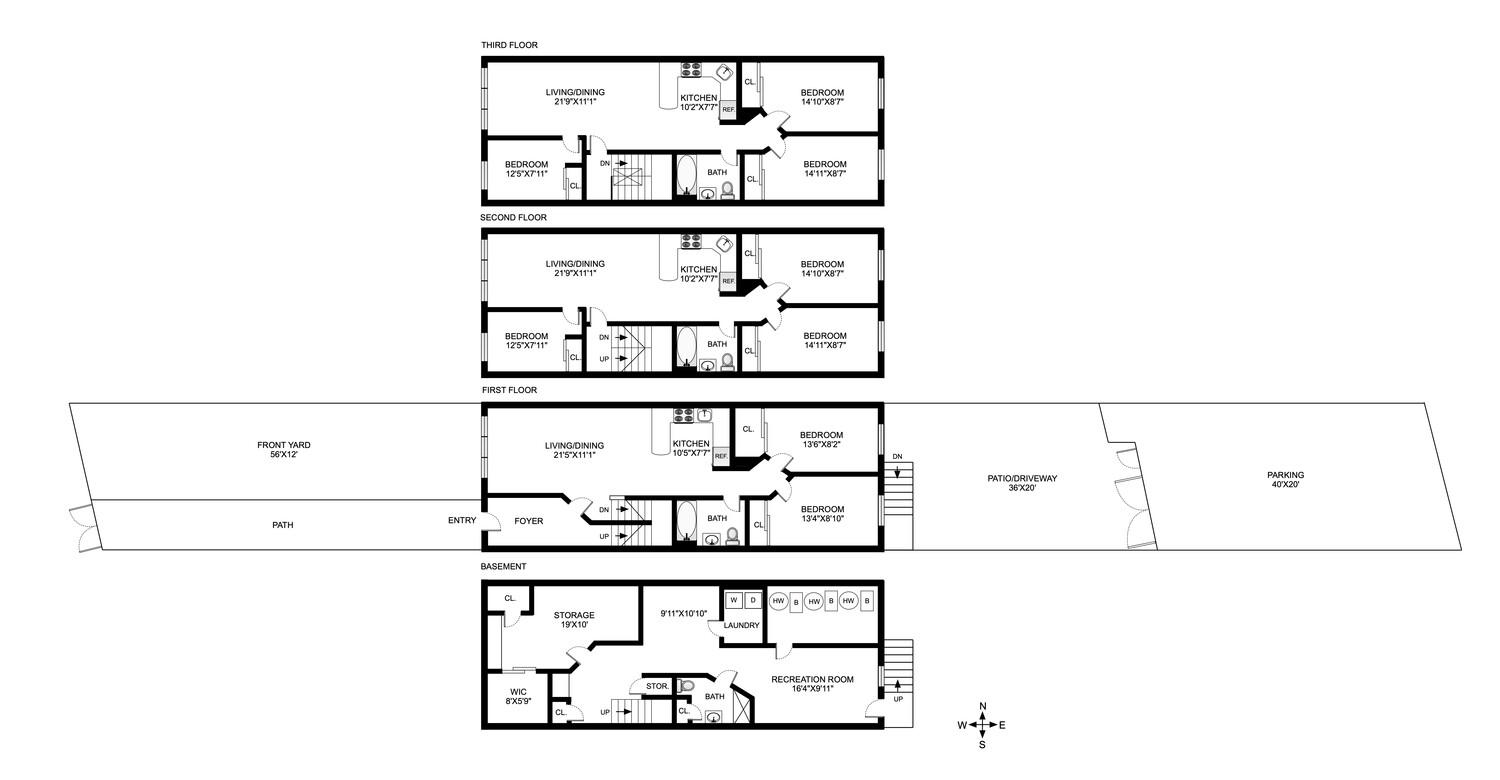
Nhà ba gia đình ở East New York với chỗ đậu xe ngoài đường cho 3 xe. Được xây dựng vào năm 2007 và được bảo trì tốt, bất động sản này mang đến cơ hội xuất sắc cho những người sở hữu nhà để bù đắp khoản thế chấp của họ bằng thu nhập từ cho thuê hoặc cho các nhà đầu tư đang tìm kiếm tỷ lệ vốn cao.
- Diện tích xây dựng 19 x 52 trên thửa đất sâu 180 ft
- Khoảng 3,950 SF +/- bao gồm tất cả các tầng
- Đơn vị 1: 2 phòng ngủ / 2 phòng tắm kết hợp với hầm đã hoàn thiện và có lối vào sân sau
- Đơn vị 2: 3 phòng ngủ / 1 phòng tắm
- Đơn vị 3: 3 phòng ngủ / 1 phòng tắm
- Tất cả các đơn vị đều được đo đạc riêng với lò sưởi và bình nước nóng riêng biệt
Gần tất cả các cửa hàng tại Gateway Center với lối đi dễ dàng tới Belt Parkway.
Các tàu gần đó bao gồm 2, 3, 4, 5 tại New Lots Ave và A, C tại Euclid Ave.
East New York Three Family home with off street parking for 3 cars. Built in 2007 and well maintained this property presents an excellent opportunity for homeowners to offset their mortgage with rental income or for investors seeking a strong cap rate.
-Built 19 x 52 on a deep 180 ft lot
-Roughly 3,950 SF +/- including all floors
-Unit 1: 2 bedroom / 2 bathroom duplexed with finished cellar and access to the backyard
-Unit 2: 3 bedroom / 1 bathroom
-Unit 3: 3 bedroom / 1 bathroom
-All units are separately metered with their own furnaces and hot water tanks
Close to all the shopping at Gateway Center with easy access to the Belt Parkway.
Nearby trains include the 2,3,4,5 at New Lots Ave and A,C at Euclid Ave.
This information is not verified for authenticity or accuracy and is not guaranteed and may not reflect all real estate activity in the market. ©2025 The Real Estate Board of New York, Inc., All rights reserved.






