| MLS # | 934859 |
| Chi tiết bất động sản | 3 phòng ngủ, 1 phòng tắm, máy rửa chén, máy giặt, ngoại thất: 0.04 mẫu đất, nội thất: 1120 ft2, 104m2 (DOM): 61 days |
| Năm xây dựng | 1910 |
| Loại nhiên liệu | Khí ga |
| Tầng hầm | Tầng hầm đầy đủ |
| Xe buýt | 1 phút: Q55 |
| 3 phút: QM24, QM25 | |
| 5 phút: B13 | |
| 7 phút: B20 | |
| 9 phút: Q39 | |
| 10 phút: Q58 | |
| Tàu điện ngầm | 10 phút: M |
| Tàu hỏa | 2 dặm: "East New York" |
| 2.6 dặm: "Forest Hills" | |
![]() |
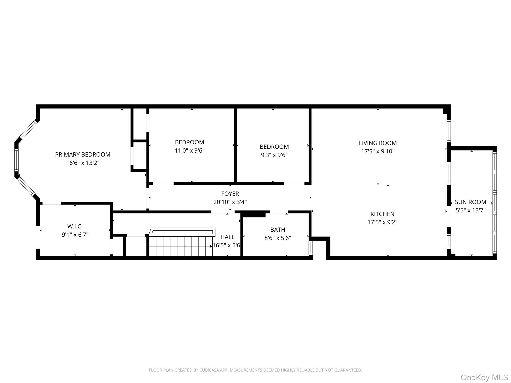
Căn hộ 3 Phòng Ngủ Được Cải Tạo Hoàn Toàn Ở Trung Tâm Glendale, Queens
Chào mừng bạn đến với căn hộ ba phòng ngủ, một phòng tắm hoàn toàn được cải tạo, nằm trong khu vực rất được săn đón ở Glendale. Căn nhà rộng rãi trên tầng hai này đã được cập nhật hoàn toàn vào năm 2025, với sàn gỗ tự nhiên ấm áp, thiết bị bằng thép không gỉ bao gồm cả máy rửa bát, và mặt đá granite làm nổi bật thiết kế bếp hiện đại.
Mỗi phòng ngủ đều được trang bị các đơn vị điều hòa và sưởi ấm mini tách biệt để mang lại sự thoải mái quanh năm. Những điểm nhấn khác bao gồm một góc văn phòng hoặc tủ quần áo đi bộ, một phòng nắng sáng sủa, và ánh sáng tự nhiên dồi dào throughout không gian.
Vị trí thuận tiện gần đại lộ Myrtle, bất động sản này cung cấp dễ dàng tiếp cận giao thông công cộng - chỉ cách 15 phút đi bộ đến tàu M - cũng như gần các lựa chọn mua sắm, ăn uống và giải trí địa phương.
Thân thiện với thú cưng và sẵn sàng để dọn vào, căn hộ này kết hợp các hoàn thiện hiện đại với vị trí đắc địa tại Glendale.
Fully Renovated 3-Bedroom Apartment in the Heart of Glendale, Queens
Welcome to this stunning, fully renovated full-floor three-bedroom, one-bathroom apartment located in the highly sought-after neighborhood of Glendale. This spacious second-floor home has been completely updated in 2025, featuring hardwood floors throughout, stainless steel appliances including a dishwasher, and granite countertops that enhance the modern kitchen design.
Each bedroom is equipped with individual mini-split heating and cooling units for year-round comfort. Additional highlights include an office nook or walk-in closet, a bright sunroom, and abundant natural light throughout the space.
Conveniently located near Myrtle Avenue, the property offers easy access to public transportation—just a 15-minute walk to the M train—as well as close proximity to local shopping, dining, and entertainment options.
Pet-friendly and move-in ready, this apartment combines modern finishes with a prime Glendale location. © 2025 OneKey™ MLS, LLC







