| ID # | 933442 |
| Chi tiết bất động sản | 4 phòng ngủ, 3 phòng tắm, 1 phòng vệ sinh nhỏ, máy rửa chén, máy giặt, gara, điều hòa không khí, ngoại thất: 1.99 mẫu đất, nội thất: 2693 ft2, 250m2 (DOM): 61 days |
| Năm xây dựng | 2026 |
| Thuế (hàng năm) | $1 |
| Loại nhiên liệu | Điện |
| Loại sưởi | Điện |
| Điều hòa không khí | Điều hòa trung tâm |
![]() |
Không gian căn hộ Moradia được bắt nguồn từ thẩm mỹ của Khu Usonia của Frank Lloyd Wright và được lấy cảm hứng từ thời kỳ thiết kế cổ điển giữa thế kỷ. Đây là một cộng đồng hoàn toàn mới với những căn hộ cao cấp sẽ được xây dựng. Nằm dọc theo một con đường đẹp như tranh ở Ossining, NY, mỗi ngôi nhà được xây trên một khu đất đẹp đẽ chưa bị xáo trộn. Các lô đất có vị trí cao và riêng tư, có diện tích từ 1 1/2 đến 3 mẫu.
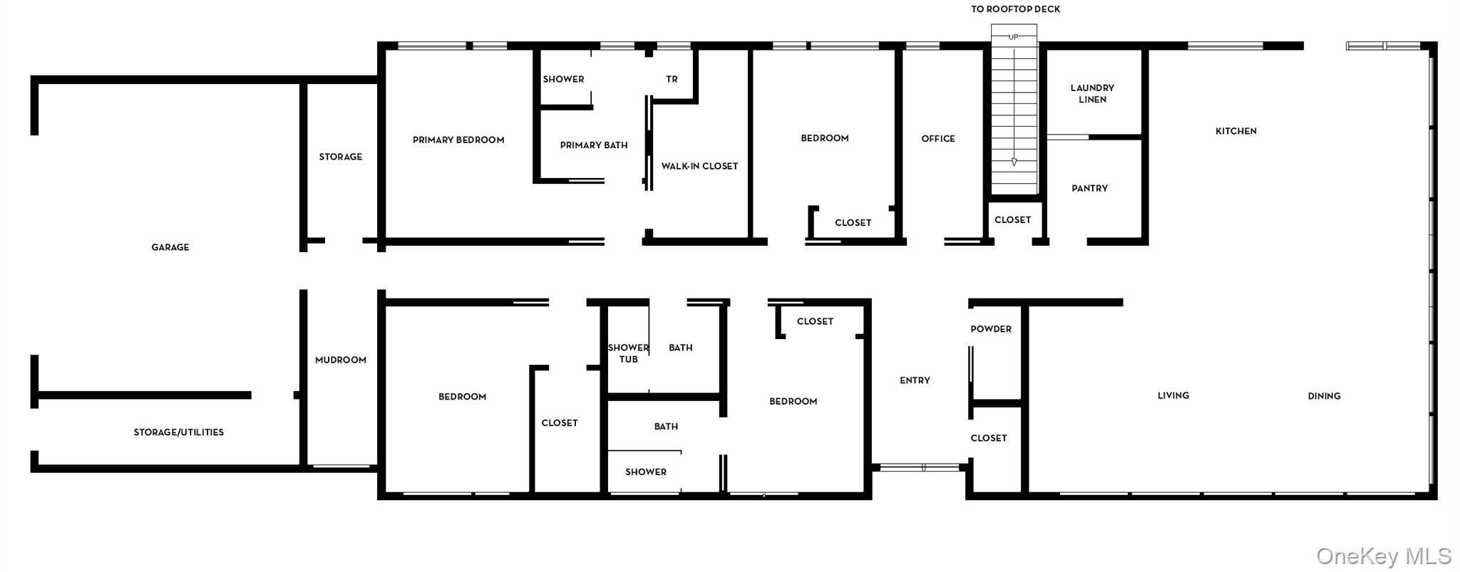
Masia là căn hộ đầu tiên trong ba căn hộ sang trọng sẽ được cung cấp. Nằm trên diện tích hai mẫu với bốn phòng ngủ và ba phòng tắm rưỡi, ngôi nhà được thiết kế trên một mặt bằng. Với thiết kế mở, nhà bếp, phòng ăn và phòng khách được bao quanh bởi cửa sổ từ trần đến sàn và ba hướng ra ngoài trời - tất cả đều tập trung vào một lò sưởi đứng độc lập, sử dụng củi. Trần cao từ 9 1/2 đến 10 1/2 foot với cửa sổ sáng và cửa sổ trên mái tràn ngập ánh sáng tự nhiên vào bên trong. Các vật liệu hoàn thiện chất lượng cao bao gồm cửa sổ gỗ Anderson, bàn gương phòng tắm Restoration Hardware, đèn chiếu sáng Herman Miller, cửa nội thất gỗ thông đặc năm tấm, và sàn gỗ sồi trắng dày 5 inch. Một phòng giặt riêng, kho thực phẩm kiểu walk-in, garage cho hai xe và sân thượng là những tiện nghi bổ sung.
Dự án được thiết kế và xây dựng bởi các nhà phát triển địa phương ở Westchester, Atelier Atlantic, cộng đồng mới này được hình thành như những ngôi nhà hiện đại cho thế kỷ mới. Các nguyên tắc Jennifer và Pascal Smith Couti, những người sống và làm việc tại Ossining, đang khai thác kinh nghiệm phong phú của họ với vai trò là nhà thiết kế nhà để biến dự án thành hiện thực và khéo léo tích hợp các căn hộ vào một cộng đồng mới đồng nhất và thanh lịch. Dự án này là một cơ hội phi thường để thực hiện giấc mơ mua một ngôi nhà hiện đại mới xây dựng trên một khu đất đẹp tuyệt vời.
Rooted in the aesthetic of Frank Lloyd Wright's Usonia District and inspired by the classic era of mid-century design, Moradia is a
brand-new community of to-be-built, high-end residences. Located along a picturesque road in historic Ossining, NY, each home is set on a beautiful parcel of virgin land. The homesites are elevated and private-ranging between 1 1/2 and 3 acres.
Masia, is the first of three luxury residences to be offered. Set on two acres and encompassing four bedrooms and three and 1/2 baths, the house is designed all on one level. Rendered in open plan, the kitchen, dining and living rooms are surrounded by floor to ceiling windows and three outdoor exposures-all centered on a free standing, wood burning fireplace. 9 1/2 to 10 1/2 foot ceilings with high clerestory windows and skylights flood the interior with natural light. High quality finishes include wood clad Andersen windows, Restoration hardware bathroom vanities, Herman Miller lighting, five-panel solid fir interior doors, and five-inch white oak floors. A dedicated laundry room, walk-in kitchen pantry, two-car garage and roof top deck are additional amenities.
Designed and being built by local Westchester developers, Atelier Atlantic, the new community is conceived as modern homes for the new century. Principals Jennifer and Pascal Smith Couti, who live and work in the Ossining, are leveraging their extensive experience as home designers to bring the project to life and to skillfully integrate the residences into a cohesive and elegant new community. The project is an extraordinary opportunity to fulfill the dream of purchasing a newly-built modern home on a wonderful parcel of beautiful land. © 2025 OneKey™ MLS, LLC







