| ID # | 933830 |
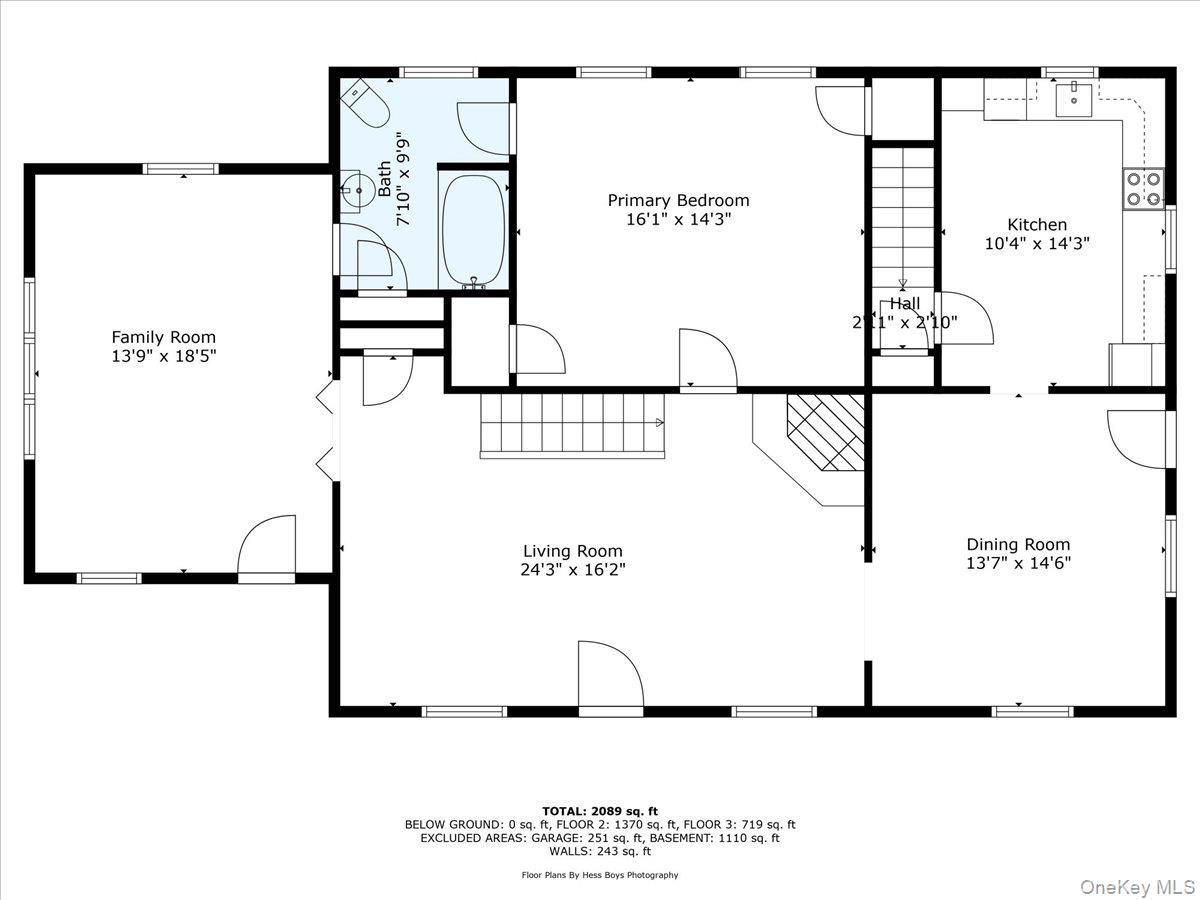
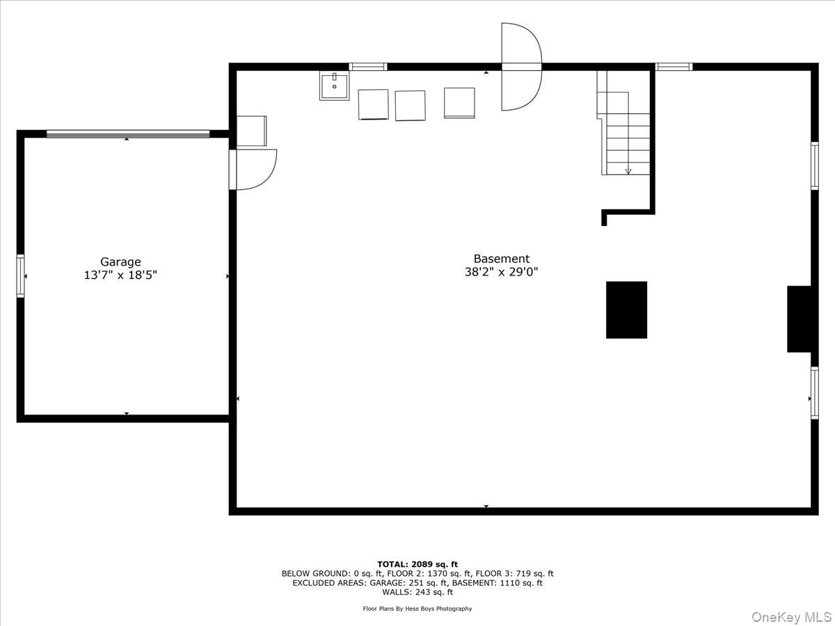
| Chi tiết bất động sản | 3 phòng ngủ, 2 phòng tắm, máy rửa chén, máy giặt, máy sấy, gara, điều hòa không khí, ngoại thất: 1.35 mẫu đất, nội thất: 2080 ft2, 193m2 (DOM): 1 days |
| Năm xây dựng | 1930 |
| Loại nhiên liệu | Dầu |
| Điều hòa không khí | Điều hòa treo tường |
| Tầng hầm | Tầng hầm đầy đủ |
![]() |
Chào mừng bạn đến với ngôi nhà được bảo trì một cách hoàn hảo này, nơi sự quyến rũ cổ điển gặp gỡ sự thoải mái hiện đại trong một không gian riêng tư, yên tĩnh. Với ba phòng ngủ rộng rãi và hai phòng tắm đầy đủ, ngôi nhà này mang đến một bố cục lý tưởng cho cả sinh hoạt hàng ngày và tiệc tùng. Phòng khách ấm cúng có một lò sưởi bằng đá tuyệt đẹp, sàn gỗ sáng bóng, các mảnh kiến trúc tinh xảo và tràn ngập ánh sáng tự nhiên, chảy vào một phòng gia đình lớn, phòng ăn và một bếp sáng với thiết bị mới. Sự thoải mái và tiện lợi được tăng cường với một phòng ngủ chính và phòng tắm đầy đủ ở tầng một. Tầng trên, hai phòng ngủ rộng rãi, một phòng bonus đa năng và một phòng tắm đầy đủ cung cấp không gian cho khách, một văn phòng tại nhà, hoặc một nơi nghỉ ngơi yên tĩnh. Hãy tận hưởng sự yên bình của không gian ngoài trời từ mái hiên rộng rãi và sân sau có hàng rào bên cạnh Khu bảo tồn Angle Fly. Sự thoải mái hàng ngày được nâng cao với máy giặt và máy sấy kích thước đầy đủ, kho chứa rộng rãi, một nồi hơi mới và hệ thống làm mềm nước. Nội thất được sơn mới, sàn gỗ được đánh bóng lại và bếp được cập nhật đã sẵn sàng chào đón bạn trở về nhà. Nằm trong khu vực thuận tiện chỉ cách ga tàu điện Katonah Metro-North 5 phút và tất cả các nhà hàng tuyệt vời, cửa hàng tuyệt vời với lối vào dễ dàng đến cả 684 và Đường cao tốc Saw Mill. Tất cả những điều này ở khu học chánh Somers được đánh giá cao và nhiều giải thưởng. Có sẵn ngay lập tức - hãy chuyển vào và tổ chức lễ hội trong ngôi nhà mới của bạn!
Welcome to this beautifully maintained home, where classic charm meets modern comfort in a private, peaceful setting. Featuring three spacious bedrooms and two full bathrooms, this home offers an ideal layout for both everyday living and entertaining. The inviting living room showcases a magnificent stone fireplace, gleaming hardwood floors, architectural mouldings and an abundance of natural light, flowing into a large family room, dining room, and a bright eat-in kitchen with new appliances. Comfort and convenience abound with a first-floor primary bedroom and full bathroom. Upstairs, two generous bedrooms, a versatile bonus room, and a full bathroom provide space for guests, a home office, or a quiet retreat. Enjoy the serenity of the outdoors from the expansive deck and fenced backyard adjacent to the Angle Fly Preserve. Everyday comfort is enhanced by a full-size washer and dryer, ample storage, a new boiler, and a water softening system. The freshly painted interior, refinished hardwood floors, and updated kitchen are ready to welcome you home. Conveniently located just 5 minutes from Katonah Metro-North Train station and all of the excellent restaurants, fabulous shops with easy access to both 684 and the Saw Mill Parkway. All of this in the highly regarded, award-winning Somers School District. Available immediately—move in and celebrate the holidays in your new home! © 2025 OneKey™ MLS, LLC







