| ID # | RLS20059128 |
| Chi tiết bất động sản | 3 phòng ngủ, 2 phòng tắm, máy rửa chén, máy giặt, máy sấy, gara, nội thất: 1268 ft2, 118m2 (DOM): 113 days |
| Năm xây dựng | 2014 |
| Phí bảo trì | $1,735 |
| Thuế (hàng năm) | $20,460 |
| Xe buýt | 1 phút: B45 |
| 2 phút: B65 | |
| 4 phút: B69 | |
| 6 phút: B48 | |
| 7 phút: B25, B26, B41 | |
| 9 phút: B67 | |
| 10 phút: B49 | |
| Tàu điện ngầm | 7 phút: 2, 3 |
| 8 phút: S, C, B, Q | |
| Tàu hỏa | 0.7 dặm: "Atlantic Terminal" |
| 0.9 dặm: "Nostrand Avenue" | |
![]() |
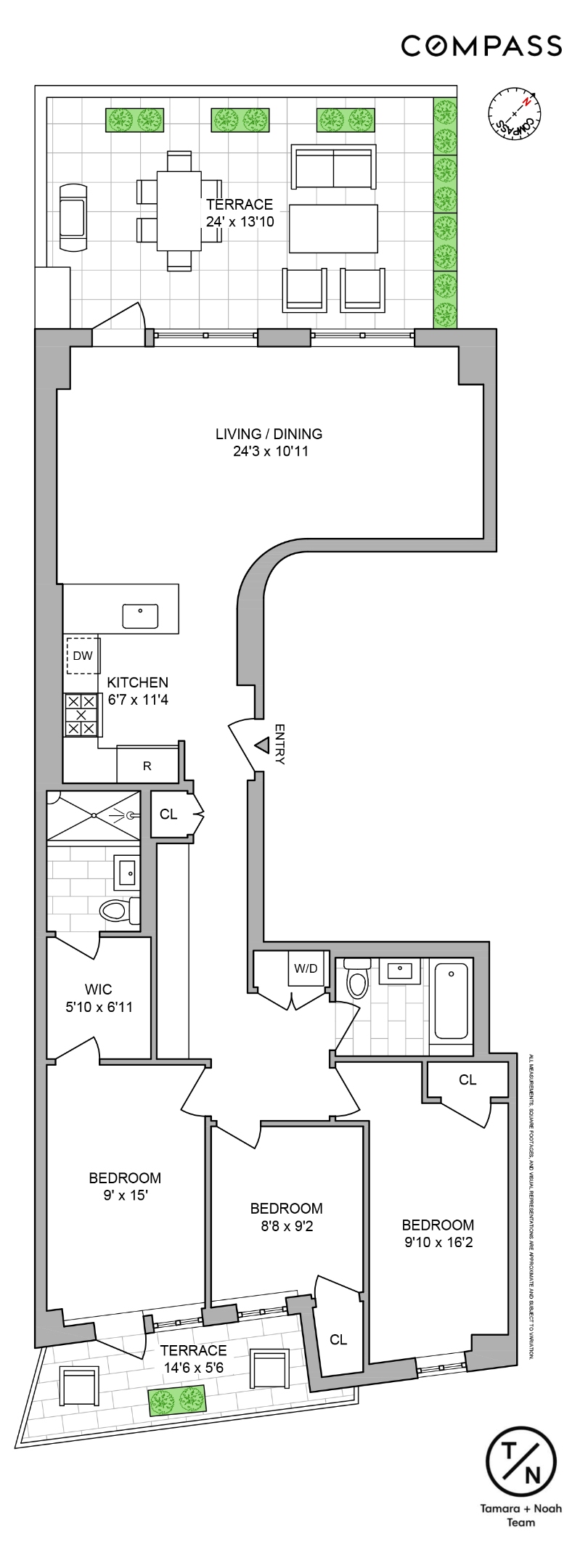
Chào mừng bạn đến với PH5A tại 336 St. Marks Avenue, nơi sự quyến rũ hiện đại gặp gỡ cuộc sống liền mạch giữa trong và ngoài nhà. Ngôi nhà xinh đẹp này có 3 phòng ngủ, 2 phòng tắm, đi kèm với một hiên lớn được trang trí và một chỗ đậu xe quý giá có thể mua trên một trong những con phố được ưa chuộng nhất ở Prospect Heights.
Bố cục mở liên kết khu vực sinh hoạt, ăn uống và bếp với một hiên rộng lớn bên cạnh không gian sinh hoạt chính và một ban công lớn khác bên cạnh phòng ngủ chính. Cửa sổ từ sàn đến trần khiến không gian tràn ngập ánh sáng tự nhiên và tạo ra một kết nối tuyệt vời với thiên nhiên.
Nhà bếp đã được cải tạo với các thiết bị hàng đầu, tủ tùy chỉnh và một quầy ăn sáng lớn.
Hành lang phòng ngủ có các tủ gắn vào tường tiện lợi với không gian lưu trữ thông minh và kệ trưng bày xinh xắn, cùng với chỗ cho một góc văn phòng tại nhà. Phòng ngủ chính rộng rãi có ban công hướng về phía nam, tủ quần áo đi bộ và một phòng tắm en-suite đã được cập nhật với vòi sen đá cẩm thạch và không gian lưu trữ tuyệt vời.
Ngôi nhà hợp pháp với ba phòng ngủ này hiện đang được sử dụng như một ngôi nhà sang trọng với hai phòng ngủ và một suite chính cực lớn, nhưng có thể dễ dàng chuyển đổi thành một ngôi nhà 3 phòng ngủ thoải mái.
336 St. Marks là một cộng đồng boutique lý tưởng với một sân chung lớn được trang trí, có khu vực nướng BBQ và khu vực ăn uống rộng lớn, cũng như một bộ cầu trượt cho trẻ em. Các tiện ích khác bao gồm cửa ra vào ảo, sân thượng chung, phòng để xe đạp và chỗ đậu xe!
Nằm ở trung tâm của Prospect Heights, cư dân có thể tận hưởng các nhà hàng và quán bar tuyệt vời trên các đại lộ Washington và Vanderbilt, Công viên Prospect, Vườn thực vật Brooklyn, chợ nông sản ở Grand Army Plaza và có đường tàu điện ngầm thuận tiện.
Welcome to PH5A at 336 St. Marks Avenue, where modern charm meets seamless indoor/outdoor living. This beautiful 3-bedroom, 2-bathroom home offers an enormous landscaped terrace and a coveted parking spot for purchase on one of the most desirable blocks in Prospect Heights.
The open layout integrates the living, dining, and kitchen areas with a generously-sized terrace off the main living space and another large balcony off the primary. Floor-to-ceiling windows fill the space with natural light and create a beautiful connection to the outdoors.
The renovated kitchen offers top-of-the-line appliances, custom cabinetry and a large breakfast bar.
The bedroom hallway features custom built-ins with smart storage and lovely display shelves, with room for a home office nook.
The oversized primary bedroom features a south-facing balcony, walk-in closet and an updated primary en-suite bathroom with a marble shower and excellent storage.
This legal three-bedroom home is currently being used as a gracious two-bedroom with an extra-large primary suite, but can easily be converted to a comfortable 3-bedroom.
336 St. Marks is an ideal boutique community with an enormous landscaped common backyard with a bbq and huge dining area, as well as a children’s playset. Other amenities include a virtual doorman, a common roof deck, bike room and parking!
Located in the heart of Prospect Heights, residents enjoy awesome restaurants and bars on Washington and Vanderbilt Avenues, Prospect Park, Brooklyn Botanic Garden, the farmer’s market in Grand Army Plaza and great subway access.
This information is not verified for authenticity or accuracy and is not guaranteed and may not reflect all real estate activity in the market. ©2025 The Real Estate Board of New York, Inc., All rights reserved.







