| ID # | 934169 |
| Chi tiết bất động sản | ngoại thất: 28.59 mẫu đất (DOM): 15 days |
| Thuế (hàng năm) | $3,586 |
![]() |
Được cấp phép đầy đủ / Giấy phép cuối có điều kiện đã được cấp bởi Thị trấn Thompson!
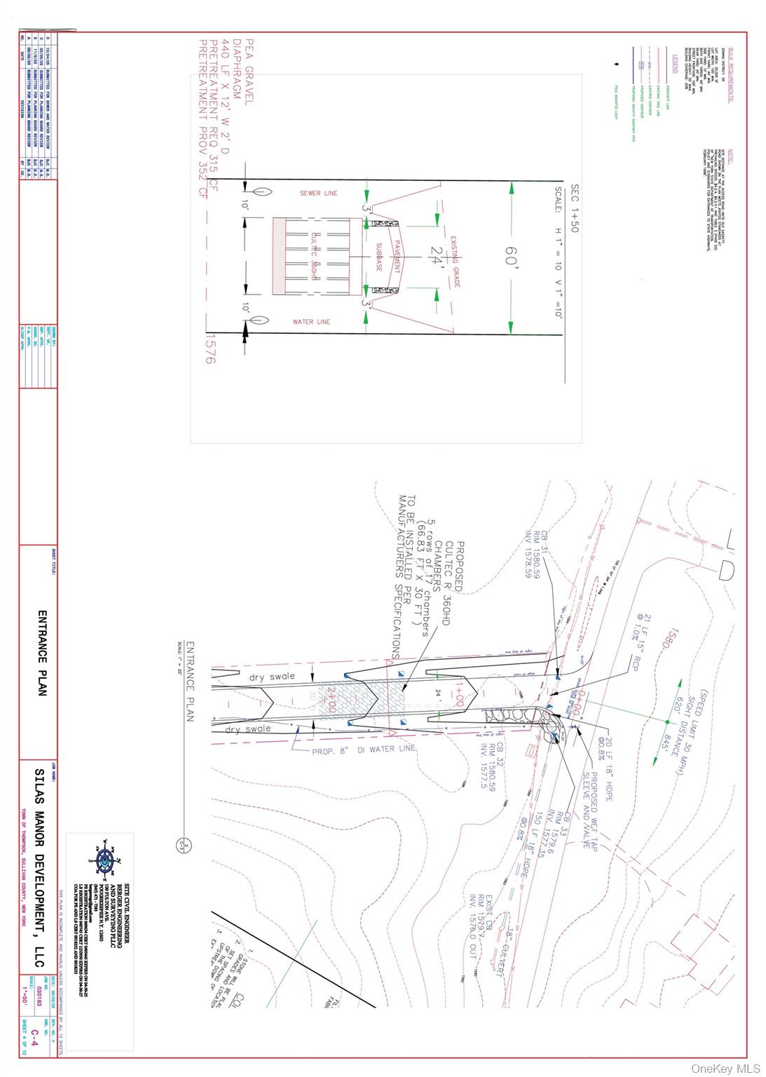
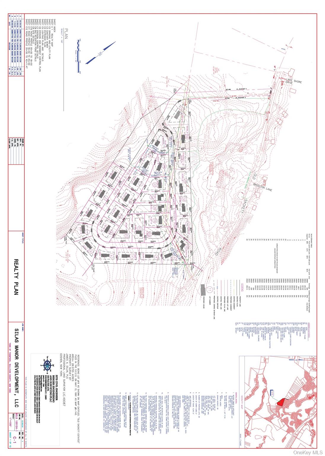
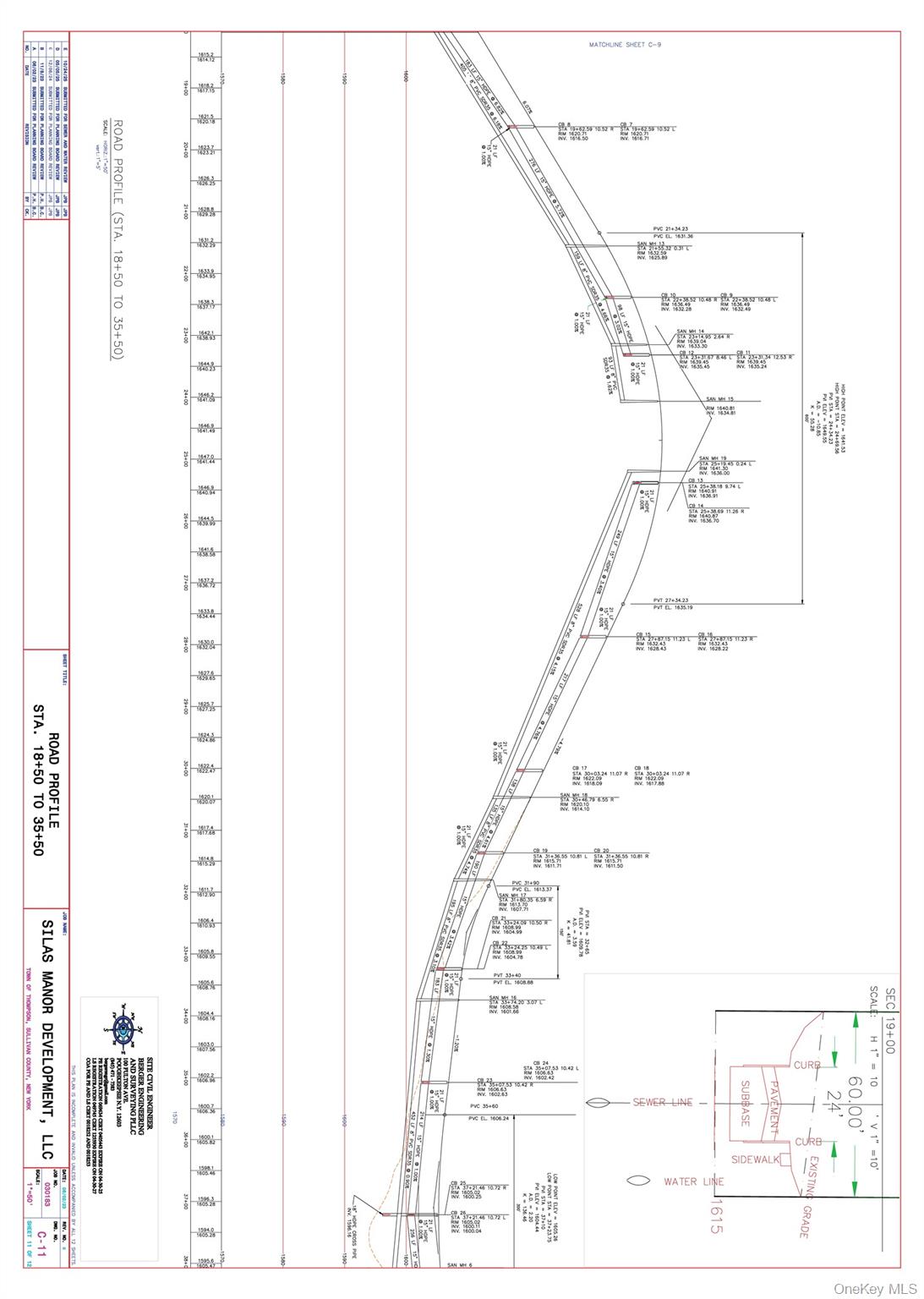
Silas Manor đại diện cho một cơ hội hiếm có và nổi bật để sở hữu một khu dân cư cao cấp đã được cấp phép đầy đủ, tọa lạc tại trung tâm khu vực phát triển mong muốn nhất của Catskills — Rock Hill, New York. Khu vực này rộng 29 mẫu Anh thoải dốc, được thiết kế tỉ mỉ cho 28 ngôi nhà đơn lẻ sang trọng, mỗi ngôi nhà dự kiến có kích thước khoảng 3,200+ bộ vuông, cung cấp sự cân bằng hoàn hảo giữa sự tinh tế hiện đại và sự yên tĩnh của cuộc sống nông thôn. Dự án cung cấp các lô đất rộng rãi với diện tích trung bình 0.70 mẫu Anh mỗi lô, mang đến sự kết hợp lý tưởng giữa sự riêng tư, không gian và kết nối cộng đồng. Kế hoạch phân lô đã được kỹ thuật hóa, xem xét và phê duyệt có điều kiện bởi Ban Quy hoạch Thị trấn Thompson, với tất cả các phê duyệt kỹ thuật hỗ trợ và phối hợp tiện ích đã được đảm bảo đầy đủ. Thiết kế hạ tầng của dự án bao gồm các dịch vụ nước và cống công cộng, đường bộ tư nhân trải nhựa, và một khu vực dành riêng cho câu lạc bộ và các tiện ích giải trí tư nhân, được hình dung sẽ có một hồ bơi, khu vực thể dục, và không gian sự kiện — tạo ra một trải nghiệm cộng đồng thật sự cho các chủ sở hữu trong tương lai.
Thiết kế Cộng đồng & Tầm nhìn về Lối sống
Cộng đồng Silas Manor đã được suy nghĩ cẩn thận để ôm trọn cảnh quan thiên nhiên trong khi cung cấp trải nghiệm sống tinh tế và năng động. Kích thước lô đất rộng rãi, các vùng đệm gỗ được bảo tồn, và các con đường đi bộ tích hợp mang lại cho các chủ sở hữu sự riêng tư, vẻ đẹp và sự kết nối. Các hướng dẫn kiến trúc hình dung những ngôi nhà được xây dựng theo yêu cầu, lấy cảm hứng từ nghệ nhân với thiết kế mở, trần cao, hệ thống tiết kiệm năng lượng, và các vật liệu cao cấp như sàn gỗ, mặt bàn quartz và đèn thiết kế. Thiết kế phân lô bao gồm các lối đi vào được cảnh quan, vỉa hè nội bộ, không gian xanh mở và một câu lạc bộ tư nhân với các tiện nghi giải trí, lý tưởng cho các gia đình, người nghỉ hưu và các nhà đầu tư thứ hai đang tìm kiếm một nơi yên tĩnh nhưng tinh tế chỉ cách Manhattan 90 phút.
Vị trí Chiến lược
Nằm trong cộng đồng Rock Hill đã được thiết lập, Silas Manor cung cấp vị trí gần gũi với tất cả các tiện nghi địa phương — bao gồm nhà hàng sang trọng, mua sắm, cơ sở y tế và giải trí quanh năm. Cư dân sẽ được hưởng dễ dàng tiếp cận đến: - Sòng bạc & Khách sạn Resorts World Catskills (15 phút) - Khu nghỉ dưỡng Công viên nước trong nhà Kartrite (15 phút) - Câu lạc bộ & Đường đua Monticello (15 phút)
Fully Entitled / Conditional Final Approval Granted by Town of Thompson!
Silas Manor represents a rare and distinguished opportunity to acquire a fully entitled, high-end residential subdivision located in the heart of the Catskills’ most desirable growth corridor — Rock Hill, New York. Spanning 29 gently rolling acres, this meticulously designed community is planned for 28 luxury single-family homes, each envisioned at approximately 3,200+ square feet, offering the perfect balance between modern sophistication and the tranquility of rural living.??The development offers generous homesites averaging 0.70 acres each, providing an ideal blend of privacy, space, and community connection. The subdivision plan has been engineered, reviewed, and conditionally approved by the Town of Thompson Planning Board, with all supporting technical approvals and utility coordination fully secured. The project’s infrastructure design includes municipal water and sewer services, paved private roadways, and a dedicated site for a private clubhouse and recreational facilities, envisioned to feature a pool, fitness area, and event space — creating a true community experience for future homeowners.
Community Design & Lifestyle Vision
The Silas Manor community has been carefully conceived to embrace the natural landscape while providing a refined and active living experience. Generous lot sizes, preserved wooded buffers, and integrated walking trails give homeowners privacy, beauty, and connectivity.??Architectural guidelines envision custom-built, craftsman-inspired homes with open-concept layouts, high ceilings, energy-efficient systems, and upscale finishes such as hardwood flooring, quartz countertops, and designer lighting. The subdivision design incorporates landscaped entryways, internal sidewalks, green open space, and a private clubhouse with recreational amenities, ideal for families, retirees, and second-home buyers seeking a serene yet sophisticated escape just 90 minutes from Manhattan.
Strategic Location
Situated in the established Rock Hill community, Silas Manor offers close proximity to all local conveniences — including fine dining, shopping, medical facilities, and year-round entertainment. Residents will enjoy easy access to:?- Resorts World Catskills Casino & Hotel (15 minutes)?- Kartrite Indoor Waterpark Resort (15 minutes)?- Monticello Motor Club & Raceway (15 minutes) © 2025 OneKey™ MLS, LLC







