| MLS # | 931451 |
| Chi tiết bất động sản | 2 phòng ngủ, 1 phòng tắm, máy rửa chén, máy giặt, gara, điều hòa không khí, nội thất: 864 ft2, 80m2 (DOM): 65 days |
| Năm xây dựng | 1954 |
| Phí bảo trì | $1,022 |
| Loại nhiên liệu | Khí ga |
| Loại sưởi | Nước nóng |
| Điều hòa không khí | Điều hòa treo tường |
| Tầng hầm | Tầng hầm đầy đủ |
| Xe buýt | 2 phút: Q72 |
| 3 phút: Q66 | |
| 4 phút: Q49 | |
| 7 phút: QM3 | |
| 8 phút: Q23 | |
| 10 phút: Q33 | |
| Tàu điện ngầm | 9 phút: 7 |
| Tàu hỏa | 1.6 dặm: "Mets-Willets Point" |
| 1.6 dặm: "Woodside" | |
![]() |
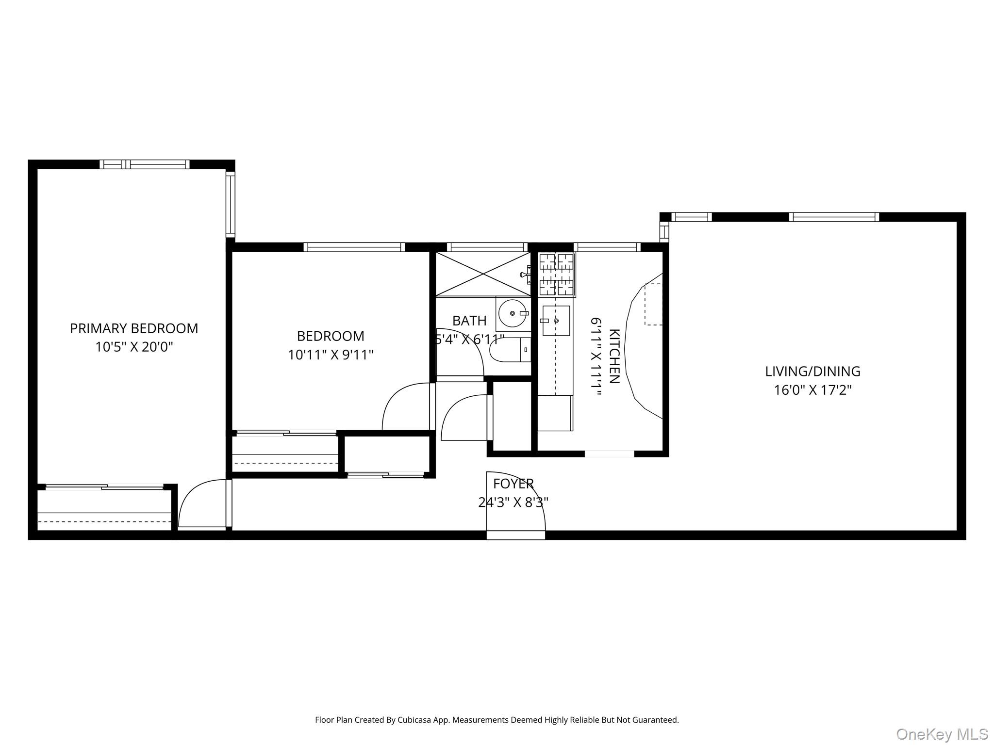
Khi bước vào, bạn sẽ được chào đón bởi một bàn console thân thiện và một hành lang kiểu phòng trưng bày dẫn đến các khu vực sinh hoạt hoặc phòng ngủ. Phòng khách rộng rãi có bốn cửa sổ lớn với hướng nam, tây và bắc, tràn ngập ánh sáng tự nhiên suốt cả ngày. Bố cục linh hoạt dễ dàng chứa một bộ bàn ăn cho tám người trong khi vẫn để lại nhiều không gian cho việc thư giãn hoặc tiếp khách.
Nhà bếp ăn có cửa sổ, một giấc mơ dành cho bất kỳ đầu bếp đam mê nào, trưng bày tủ bếp gỗ óc chó với mặt kính nổi và phần cứng bằng đồng dầu, mặt bàn granite, và tủ bếp kiểu phòng chứa đồ ở cả hai bên, cung cấp không gian lưu trữ và chuẩn bị đồ ăn tuyệt vời. Quầy bar ăn sáng được đặt khéo léo có thể ngồi thoải mái hai người, là một địa điểm lý tưởng cho bữa ăn nhẹ hoặc cà phê vào buổi sáng.
Phòng tắm có vòi sen đi bộ kín kính, sàn gạch gốm, và một bàn trang điểm hiện đại với không gian lưu trữ bổ sung. Phòng ngủ chính, lớn nhất trong khu phức hợp, có một tủ quần áo cao mười feet từ sàn đến trần, trong khi phòng ngủ thứ hai cũng rộng rãi không kém và có một tủ quần áo đôi, tất cả đều đã được tùy chỉnh. Có hai tủ quần áo bổ sung, một tủ rộng đôi và tủ kia có kích thước đáng kể.
Những điểm nổi bật khác bao gồm phí bảo trì hàng tháng thấp là 1,022.07 đô la, bao gồm tất cả các tiện ích, một đơn vị lưu trữ được chỉ định, lưu trữ xe đạp miễn phí, và quyền truy cập vào một phòng tập gym đầy đủ chỉ với 10 đô la/tháng. Hợp tác xã cũng cung cấp các khu vườn được cảnh quan đẹp mắt, ba sân riêng có chỗ ngồi và khu vui chơi, và một phòng tiệc có sẵn cho các sự kiện riêng với phí danh nghĩa. Cũng có một bãi đậu xe trong nhà có danh sách chờ. Những vật nuôi nhỏ được phép. Không cho thuê lại. Cần đặt cọc 20% và được sự chấp thuận của ban quản trị.
Upon entry, you’re greeted by a welcoming console table and a gallery-style hallway that leads effortlessly to the living areas or the sleeping quarters. The gracious living room features four oversized windows with south, west, and north exposures, bathing the home in natural light throughout the day. The flexible layout easily accommodates a full dining suite for eight while still leaving ample space for relaxation or entertaining.
The windowed eat-in kitchen, a dream for any avid chef, showcases raised-panel walnut cabinetry with oil-brushed bronze hardware, granite countertops, and pantry-style cabinetry on both sides, providing exceptional storage and prep space. A cleverly placed breakfast bar comfortably seats two, making it an ideal spot for casual dining or morning coffee.
The bathroom features a glass-enclosed walk-in shower, ceramic-tiled floors, and a modern vanity with additional storage. The primary bedroom, the largest in the complex, features a ten-foot, floor-to-ceiling closet, while the second bedroom is equally spacious and includes a double closet, all of which have been customized. There are two additional closets, one double-wide and the other sizable.
Further highlights include low monthly maintenance of $1,022.07, inclusive of all utilities, a designated storage unit, complimentary bike storage, and access to a full gym for just $10/month. The cooperative also offers beautifully landscaped gardens, three private courtyards with seating and play areas, and a party room available for private events at a nominal fee. There is also a wait-listed indoor garage. Small pets are permitted. Subletting is not allowed. 20% down payment and board approval are required. © 2025 OneKey™ MLS, LLC







