| MLS # | 932568 |
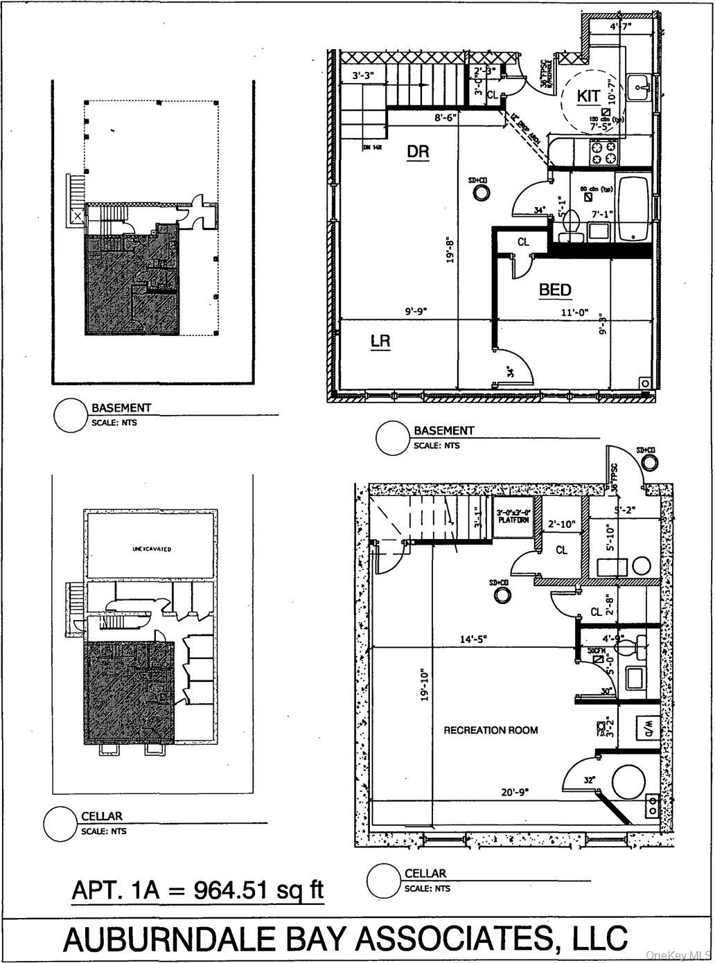
| Chi tiết bất động sản | 1 phòng ngủ, 2 phòng tắm, máy rửa chén, máy giặt, điều hòa không khí, nội thất: 965 ft2, 90m2 (DOM): 66 days |
| Năm xây dựng | 2010 |
| Phí bảo trì | $363 |
| Thuế (hàng năm) | $6,858 |
| Loại nhiên liệu | Khí ga |
| Điều hòa không khí | Điều hòa trung tâm |
| Tầng hầm | Tầng hầm đầy đủ |
| Xe buýt | 3 phút: Q12, Q13, Q76, QM3 |
| 5 phút: Q28 | |
| Tàu hỏa | 0.1 dặm: "Auburndale" |
| 0.7 dặm: "Broadway" | |
![]() |
Giới thiệu một căn hộ duplex được trang bị đẹp mắt, kết hợp hài hòa giữa thiết kế hiện đại, hoàn thiện tinh tế và không gian sống chức năng. Căn nhà được thiết kế tỉ mỉ này mang đến sự cân bằng hoàn hảo giữa phong cách, sự thoải mái và tiện lợi—lý tưởng cho những chủ nhà sành điệu ngày nay. Khi bước vào, bạn sẽ được chào đón bởi khu vực sinh hoạt rộng rãi, tràn ngập ánh sáng mặt trời với những cửa sổ lớn cho phép ánh sáng tự nhiên đổ vào, tạo ra không khí ấm cúng và mời gọi. Kế hoạch mặt bằng mở rộng giúp nâng cao cảm giác rộng rãi và lưu thông, khiến nó trở thành nơi lý tưởng cho cả sinh hoạt hàng ngày và tiếp đãi khách. Nhà bếp hiện đại chắc chắn là niềm vui của những đầu bếp, với các thiết bị bằng thép không gỉ tinh tế, mặt đá granite thanh lịch, tủ bếp tùy chỉnh và không gian bề mặt rộng rãi cho việc chuẩn bị bữa ăn. Mọi chi tiết đều được lựa chọn cẩn thận để đảm bảo cả về vẻ đẹp và chức năng. Các phòng tắm được cập nhật tinh tế với các thiết bị cao cấp, gạch trang trí thiết kế và hoàn thiện hiện đại, mang đến một nơi nghỉ ngơi giống như spa ngay trong sự thoải mái của ngôi nhà của bạn. Một số điểm nổi bật khác bao gồm máy giặt trong căn hộ để tiện lợi hơn, cùng với sàn gỗ đã được đánh bóng và các chi tiết kiến trúc tinh tế ở khắp nơi, nâng cao thẩm mỹ tổng thể của ngôi nhà. Tầng dưới có một tầng hầm hoàn thiện giúp mang lại tính linh hoạt đặc biệt. Dù được sử dụng làm phòng gia đình, văn phòng tại nhà, phòng khách, khu vực thể dục hay không gian giải trí, tầng này có thể dễ dàng thích ứng với nhiều nhu cầu sống khác nhau. Bố cục cho phép sử dụng không gian sáng tạo trong khi vẫn giữ cảm giác thông thoáng và thoải mái. Nằm ở trung tâm Auburndale, căn hộ này mang đến một vị trí không thể tốt hơn. Chỉ cách một đoạn phố từ Northern Boulevard và hai đoạn phố từ Đường sắt Long Island (LIRR), cư dân dễ dàng tiếp cận Manhattan và các khu vực lân cận của Queens. Khu vực xung quanh có nhiều lựa chọn nhà hàng, quán cà phê, siêu thị và cửa hàng boutique đa dạng, cung cấp tất cả các tiện ích cần thiết cho cuộc sống đô thị tiện lợi. Nhiều công viên công cộng cũng nằm gần đó, mang đến cơ hội giải trí ngoài trời và không gian xanh ngay trước cửa nhà bạn. Chi phí chung hàng tháng là 363,17 đô la và bao gồm ưu đãi thêm của một tủ lưu trữ riêng—một tính năng vô giá cho cuộc sống thành phố. Căn hộ này mang lại giá trị đặc biệt do vị trí mong muốn, bố cục rộng rãi và hoàn thiện chất lượng. Điều tuyệt vời nhất là không cần phê duyệt của ban quản lý, giúp cho quy trình mua bán trở nên đơn giản hơn và việc sở hữu trở nên dễ tiếp cận hơn. Với sự kết hợp giữa thiết kế hiện đại, bố cục chức năng và vị trí đắc địa, căn hộ duplex này nổi bật như một cơ hội xuất sắc trong một trong những khu phố thu hút nhất của Queens.
Introducing a beautifully appointed duplex condominium that seamlessly combines modern design, refined finishes, and functional living spaces. This thoughtfully designed residence offers a perfect balance of style, comfort, and convenience—ideal for today’s discerning homeowner. Upon entering, you are greeted by an expansive, sun-filled living area highlighted by oversized windows that flood the space with natural light, creating a warm and inviting atmosphere. The open-concept floor plan enhances the sense of spaciousness and flow, making it perfect for both everyday living and entertaining guests. The contemporary kitchen is a chef’s delight, featuring sleek stainless steel appliances, elegant granite countertops, custom cabinetry, and ample counter space for meal preparation. Every detail has been carefully selected to ensure both beauty and functionality. The bathrooms have been tastefully updated with high-end fixtures, designer tile work, and modern finishes, offering a spa-like retreat within the comfort of your own home. Additional highlights include in-unit laundry for added convenience, as well as polished hardwood flooring and refined architectural details throughout that elevate the home’s overall aesthetic. The lower level boasts a fully finished basement that provides exceptional flexibility. Whether used as a family room, home office, guest suite, fitness area, or recreational space, this level adapts effortlessly to a variety of lifestyle needs. The layout allows for creative use of space while maintaining a sense of openness and comfort. Situated in the heart of Auburndale, this residence offers an unbeatable location. Just one block from Northern Boulevard and two blocks from the Long Island Rail Road (LIRR), residents enjoy effortless access to Manhattan and neighboring Queens communities. The surrounding area is filled with a diverse selection of restaurants, cafes, supermarkets, and boutique shops, providing all the essentials for convenient urban living. Several public parks are also nearby, offering outdoor recreation and green space right at your doorstep. Monthly common charges are $363.17 and include the added benefit of a private storage cubicle—an invaluable feature for city living. This condominium presents exceptional value given its desirable location, generous layout, and quality finishes. Best of all, there is no board approval required, streamlining the purchase process and making ownership more accessible. With its combination of modern design, functional layout, and prime location, this duplex condominium stands out as an exceptional opportunity in one of Queens’ most sought-after neighborhoods. © 2025 OneKey™ MLS, LLC







